2023년 12월 7일 목요일

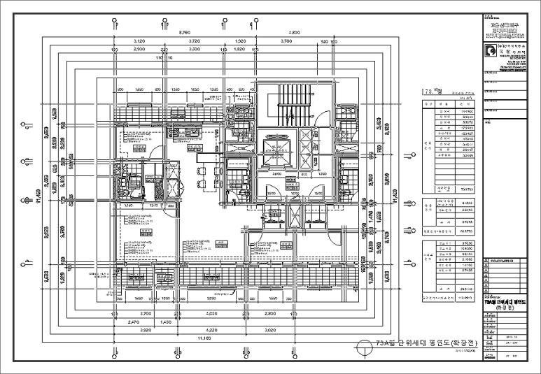
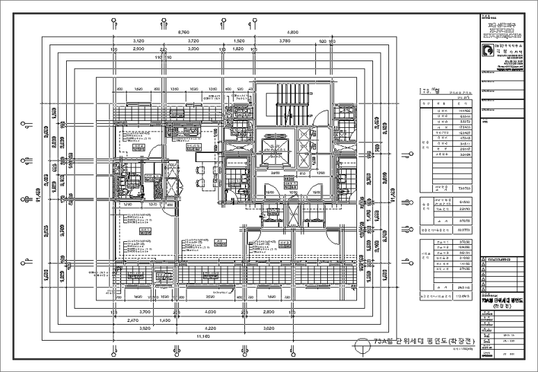
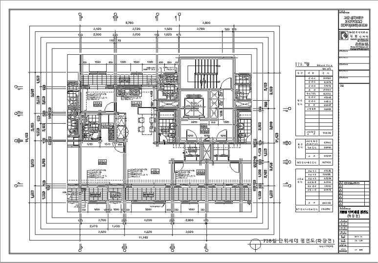
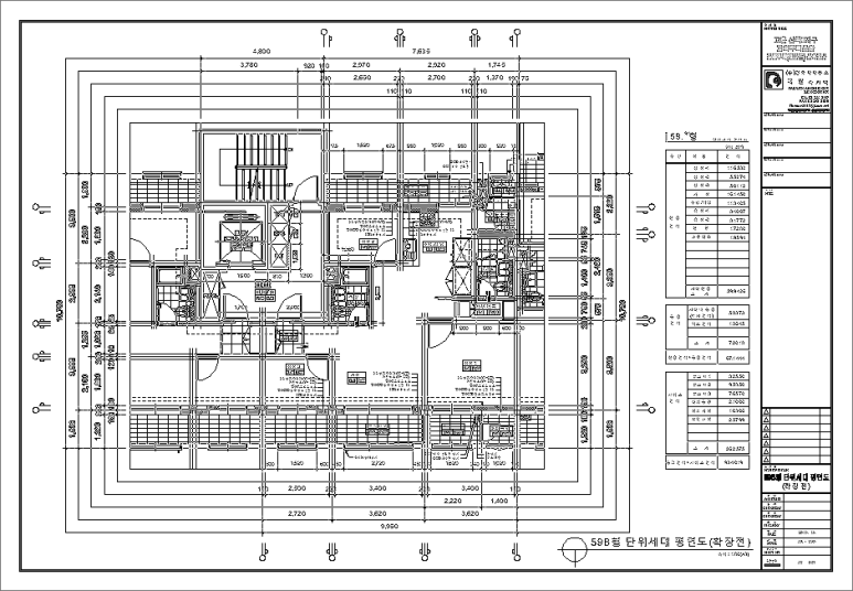
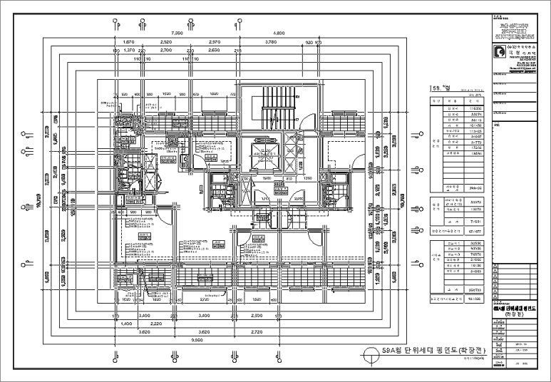
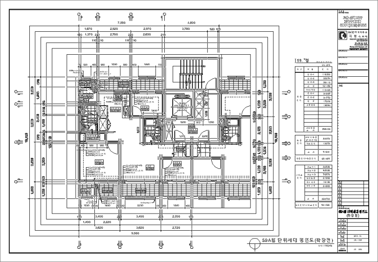
신축아파트 입주합니다.전세,월세,매매 많이 있습니다.김포 고촌역 도보5분 신축 양우내안에 최곱니다.강추합니다. 프로파일 jesusjeja ・ 11분 전 URL 복사 통계 본문 기타 기능 신축아파트 입주합니다.전세,월세,매매 많이 있습니다.김포 고촌역 도보5분 신축 양우내안에 최곱니다.강추합니다. ​ 신축 양우내안에 평면도 신축 양우내안에 평면도 김포 고촌역 양우내안에 단지배치도1 김포 고촌역 양우내안에 단지배치도2 김포 고촌역 양우내안에 동호수배치도 김포 고촌역 양우내안에 평면도 치수나옴 김포 고촌역 양우내안에 사업개요 김포 고촌역 양우내안에 단지정보 김포 고촌역 양우내안에 단지 면적별 정보1 김포 고촌역 양우내안에 단지 면적별 정보2 김포 고촌역 양우내안에 단지 면적별 정보3 김포 고촌역 양우내안에 단지 면적별 정보4 김포 고촌역 양우내안에 단지 주변 편의시설 ​ 고촌초등학교,고촌중학교,고촌고등학교,현대프리미엄아울렛,홈플러스,이마트,공원,체육관,복지관 신축아파트 입주,고촌역도보5분,김포공항역에서한정거장,방3개욕실2개파우더룸,전용이매우넓음,아파트시세매매가8억-10억,입주시작일2024년1월12일부터,방3개거실1개시스템에어컨 완비된곳이많아요^^ #김포고촌양우내안에 #김포신축아파트입주 #고촌역신축아파트입주 #고촌역신축아파트 #고촌역양우내안에 #강서구신축아파트 #강서구신혼집 #김포전철역 #김포고촌역 #양우내안에 궁굼하신점 있으면 문의주세요^^ 저작자 명시 필수 영리적 사용 불가 내용 변경 불가 태그 #김포고촌양우내안에 #김포신축아파트입주 #고촌역신축아파트입주 #고촌역신축아파트 #고촌역양우내안에 #강서구신축아파트 #강서구신혼집 #김포전철역 #김포고촌역 #양우내안에 태그수정 공감해요 1 이 글에 공감한 블로거 열고 닫기 댓글 쓰기 이 글에 댓글 단 블로거 열고 닫기 카페 보내기Keep 보내기메모 보내기기타 보내기 펼치기 수정 삭제 설정 강서구아파트,강서구아파트시세,강서구아파트매매,강서구아파트전세,강서구아파트월세,9호선매매,9호선전세,9호선월세,강서구월세,강서구전세,월세 강서구아파트 2021. 12. 28. 15:55 수정 삭제 복사https://blog.naver.com/sungsilhyo/222606770744 통계보기 강서센트레빌4차 서울특별시 강서구 공항동 1374 매매 공급/전용(㎡) 하위평균 일반평균 상위평균 75.84A / 59.96 65,000 70,000 73,000 75.84B / 59.96 65,000 70,000 73,000 106.19A / 84.99 80,500 84,500 87,500 106.19B / 84.99 80,500 84,500 87,500 106.42C / 84.98 80,500 84,500 87,500 106.42D / 84.98 80,500 84,500 87,500 146.61A / 118.21 83,500 87,500 92,500 146.61B / 118.21 83,500 87,500 92,500 전세 공급/전용(㎡) 하위평균 일반평균 상위평균 75.84A / 59.96 40,000 42,000 45,000 75.84B / 59.96 40,000 42,000 45,000 106.19A / 84.99 50,000 52,000 55,000 106.19B / 84.99 50,000 52,000 55,000 106.42C / 84.98 50,000 52,000 55,000 106.42D / 84.98 50,000 52,000 55,000 146.61A / 118.21 53,000 55,000 58,000 146.61B / 118.21 53,000 55,000 58,000 월세 공급/전용(㎡) 보증금 월세 75.84A / 59.96 10,000 80 ~ 80 75.84B / 59.96 10,000 80 ~ 80 106.19A / 84.99 10,000 115 ~ 115 106.19B / 84.99 10,000 115 ~ 115 106.42C / 84.98 10,000 115 ~ 115 106.42D / 84.98 10,000 115 ~ 115 146.61A / 118.21 - - 146.61B / 118.21 - - 해태 서울특별시 강서구 공항동 1371 매매 공급/전용(㎡) 하위평균 일반평균 상위평균 79.49A / 59.90 54,000 57,000 60,000 79.61B / 59.99 54,000 57,000 60,000 111.39A / 83.94 62,000 64,250 66,500 111.83B / 84.27 62,000 64,250 66,500 112.33C / 84.65 62,000 64,250 66,500 전세 공급/전용(㎡) 하위평균 일반평균 상위평균 79.49A / 59.90 29,500 31,500 34,000 79.61B / 59.99 29,500 31,500 34,000 111.39A / 83.94 40,500 42,500 45,000 111.83B / 84.27 40,500 42,500 45,000 112.33C / 84.65 40,500 42,500 45,000 월세 공급/전용(㎡) 보증금 월세 79.49A / 59.90 5,000 70 ~ 80 79.61B / 59.99 5,000 70 ~ 80 111.39A / 83.94 5,000 100 ~ 110 111.83B / 84.27 5,000 100 ~ 110 112.33C / 84.65 5,000 100 ~ 110 태그 #강서구아파트 #강서구아파트시세 #강서구아파트매매 #강서구아파트전세 #강서구아파트월세 #9호선매매 #9호선전세 #9호선월세 #강서구월세 #강서구전세 #월세 태그수정 공감해요 2 이 글에 공감한 블로거 열고 닫기 댓글 쓰기 이 글에 댓글 단 블로거 열고 닫기 카페 보내기Keep 보내기메모 보내기기타 보내기 펼치기 수정 삭제 설정 강서구아파트,강서구아파트시세,강서구아파트매매,강서구아파트전세,강서구아파트월세,9호선매매,9호선전세,9호선월세,강서구월세,강서구전세,월세 강서구아파트 2021. 12. 28. 15:54 수정 삭제 복사https://blog.naver.com/sungsilhyo/222606769967 통계보기 강서구아파트,강서구아파트시세,강서구아파트매매,강서구아파트전세,강서구아파트월세,9호선매매,강서센트레빌3차 서울특별시 강서구 방화동 893 매매 공급/전용(㎡) 하위평균 일반평균 상위평균 80.90 / 59.83 72,000 77,000 82,000 95.37A / 72.43 86,500 91,500 96,500 95.40B / 72.43 86,500 91,500 96,500 109.93E / 84.40 92,500 97,500 102,500 109.93A / 84.40 92,500 97,500 102,500 109.93B / 84.40 92,500 97,500 102,500 109.93C / 84.40 92,500 97,500 102,500 109.93D / 84.40 92,500 97,500 102,500 113.40A / 84.40 92,500 97,500 102,500 113.40B / 84.40 92,500 97,500 102,500 전세 공급/전용(㎡) 하위평균 일반평균 상위평균 80.90 / 59.83 40,000 42,000 45,000 95.37A / 72.43 47,000 50,000 53,500 95.40B / 72.43 47,000 50,000 53,500 109.93E / 84.40 52,000 58,000 59,000 109.93A / 84.40 52,000 58,000 59,000 109.93B / 84.40 52,000 58,000 59,000 109.93C / 84.40 52,000 58,000 59,000 109.93D / 84.40 52,000 58,000 59,000 113.40A / 84.40 52,000 58,000 59,000 113.40B / 84.40 52,000 58,000 59,000 월세 공급/전용(㎡) 보증금 월세 80.90 / 59.83 10,000 80 ~ 90 95.37A / 72.43 10,000 95 ~ 110 95.40B / 72.43 10,000 95 ~ 110 109.93E / 84.40 10,000 130 ~ 150 109.93A / 84.40 10,000 130 ~ 150 109.93B / 84.40 10,000 130 ~ 150 109.93C / 84.40 10,000 130 ~ 150 109.93D / 84.40 10,000 130 ~ 150 113.40A / 84.40 10,000 130 ~ 150 113.40B / 84.40 10,000 130 ~ 150 개화산경남아너스빌 서울특별시 강서구 방화동 887 매매 공급/전용(㎡) 하위평균 일반평균 상위평균 87.16A / 67.06 62,000 64,000 66,000 87.16B / 67.06 62,000 64,000 66,000 106.36A / 82.53 73,000 77,000 81,000 106.36B / 82.53 73,000 77,000 81,000 전세 공급/전용(㎡) 하위평균 일반평균 상위평균 87.16A / 67.06 29,500 30,500 34,500 87.16B / 67.06 29,500 30,500 34,500 106.36A / 82.53 35,000 37,000 40,500 106.36B / 82.53 35,000 37,000 40,500 월세 공급/전용(㎡) 보증금 월세 87.16A / 67.06 5,000 78 ~ 88 87.16B / 67.06 5,000 78 ~ 88 106.36A / 82.53 5,000 100 ~ 110 106.36B / 82.53 5,000 100 ~ 110 개화산동부센트레빌(1차) 서울특별시 강서구 방화동 870 매매 공급/전용(㎡) 하위평균 일반평균 상위평균 79.45 / 59.97 66,250 68,000 70,000 86.36 / 59.97 66,500 68,250 70,500 96.85 / 77.68 71,000 73,000 75,000 106.00 / 84.96 77,250 79,250 81,250 전세 공급/전용(㎡) 하위평균 일반평균 상위평균 79.45 / 59.97 39,000 40,000 41,000 86.36 / 59.97 39,500 40,500 41,500 96.85 / 77.68 41,750 44,500 46,500 106.00 / 84.96 50,500 52,250 54,000 월세 공급/전용(㎡) 보증금 월세 79.45 / 59.97 5,000 105 ~ 115 86.36 / 59.97 5,000 115 ~ 125 96.85 / 77.68 5,000 130 ~ 140 106.00 / 84.96 5,000 138 ~ 148 길성그랑프리텔 서울특별시 강서구 방화동 867 매매 공급/전용(㎡) 하위평균 일반평균 상위평균 82.32 / 57.97 66,500 70,500 73,500 87.63 / 62.65 70,000 74,000 77,000 108.24 / 77.80 74,500 78,000 81,000 114.48 / 84.05 76,500 80,000 83,500 전세 공급/전용(㎡) 하위평균 일반평균 상위평균 82.32 / 57.97 38,750 40,750 41,750 87.63 / 62.65 40,000 42,000 42,750 108.24 / 77.80 45,250 47,500 49,250 114.48 / 84.05 45,750 48,250 49,750 월세 공급/전용(㎡) 보증금 월세 82.32 / 57.97 10,000 68 ~ 75 87.63 / 62.65 10,000 73 ~ 80 108.24 / 77.80 10,000 90 ~ 105 114.48 / 84.05 10,000 90 ~ 110 길훈 서울특별시 강서구 방화동 201-1 매매 공급/전용(㎡) 하위평균 일반평균 상위평균 70.92 / 51.28 57,750 58,875 62,750 91.01 / 65.88 61,938 66,925 71,000 전세 공급/전용(㎡) 하위평균 일반평균 상위평균 70.92 / 51.28 21,000 24,500 27,500 91.01 / 65.88 29,000 32,000 36,750 월세 공급/전용(㎡) 보증금 월세 70.92 / 51.28 2,000 55 ~ 60 91.01 / 65.88 6,000 58 ~ 63 대망드림힐 서울특별시 강서구 방화동 872 매매 공급/전용(㎡) 하위평균 일반평균 상위평균 78.70B / 59.70 52,500 55,000 56,500 78.98A / 59.43 52,500 55,000 56,500 111.48N / 84.53 66,500 69,500 71,500 전세 공급/전용(㎡) 하위평균 일반평균 상위평균 78.70B / 59.70 35,000 37,000 37,750 78.98A / 59.43 35,000 37,000 37,750 111.48N / 84.53 40,000 42,250 44,250 월세 공급/전용(㎡) 보증금 월세 78.70B / 59.70 10,000 58 ~ 70 78.98A / 59.43 10,000 58 ~ 70 111.48N / 84.53 10,000 68 ~ 88 도시개발공사(그린) 서울특별시 강서구 방화동 839 매매 공급/전용(㎡) 하위평균 일반평균 상위평균 43.50A / 33.18 52,500 56,000 58,250 44.08B / 33.60 52,500 56,000 58,250 52.16A / 39.76 60,000 62,750 64,000 65.29 / 49.77 66,500 68,250 70,500 전세 공급/전용(㎡) 하위평균 일반평균 상위평균 43.50A / 33.18 26,500 27,500 28,250 44.08B / 33.60 26,500 27,500 28,250 52.16A / 39.76 32,000 33,750 34,750 65.29 / 49.77 36,500 37,000 38,000 월세 공급/전용(㎡) 보증금 월세 43.50A / 33.18 1,000 50 ~ 50 44.08B / 33.60 1,000 50 ~ 50 52.16A / 39.76 2,000 50 ~ 58 65.29 / 49.77 5,000 45 ~ 50 도시개발공사(도시개발12단지) 서울특별시 강서구 방화동 852 매매 공급/전용(㎡) 하위평균 일반평균 상위평균 51.19 / 39.58 54,500 57,500 60,000 66.10 / 51.03 65,000 68,000 70,500 75.37 / 59.34 69,000 71,000 74,500 전세 공급/전용(㎡) 하위평균 일반평균 상위평균 51.19 / 39.58 21,000 22,250 23,750 66.10 / 51.03 34,000 34,750 36,000 75.37 / 59.34 36,000 37,250 39,000 월세 공급/전용(㎡) 보증금 월세 51.19 / 39.58 1,000 60 ~ 68 66.10 / 51.03 1,000 83 ~ 90 75.37 / 59.34 3,000 95 ~ 103 동성 서울특별시 강서구 방화동 817 매매 공급/전용(㎡) 하위평균 일반평균 상위평균 79.24 / 64.65 72,500 76,000 80,000 94.14 / 76.80 80,000 85,000 90,000 104.12 / 84.95 88,000 92,000 97,000 전세 공급/전용(㎡) 하위평균 일반평균 상위평균 79.24 / 64.65 42,000 45,000 47,000 94.14 / 76.80 44,000 47,000 50,000 104.12 / 84.95 47,000 49,000 52,000 월세 공급/전용(㎡) 보증금 월세 79.24 / 64.65 - - 94.14 / 76.80 3,000 98 ~ 100 104.12 / 84.95 10,000 85 ~ 95 마곡경남아너스빌 서울특별시 강서구 방화동 888 매매 공급/전용(㎡) 하위평균 일반평균 상위평균 79.08A / 59.91 71,750 74,250 78,250 107.00A / 84.98 78,000 83,000 85,500 전세 공급/전용(㎡) 하위평균 일반평균 상위평균 79.08A / 59.91 37,500 40,000 42,000 107.00A / 84.98 44,000 48,000 50,000 월세 공급/전용(㎡) 보증금 월세 79.08A / 59.91 5,000 85 ~ 95 107.00A / 84.98 5,000 100 ~ 120 마곡보타닉경남아너스빌 서울특별시 강서구 방화동 883 매매 공급/전용(㎡) 하위평균 일반평균 상위평균 79.76 / 59.76 68,500 72,500 75,500 108.20 / 84.99 85,500 89,500 93,000 전세 공급/전용(㎡) 하위평균 일반평균 상위평균 79.76 / 59.76 34,500 39,500 40,500 108.20 / 84.99 44,000 47,500 51,000 월세 공급/전용(㎡) 보증금 월세 79.76 / 59.76 10,000 70 ~ 80 108.20 / 84.99 20,000 55 ~ 63 마곡삼성 서울특별시 강서구 방화동 857 매매 공급/전용(㎡) 하위평균 일반평균 상위평균 77.88 / 59.95 71,500 74,500 77,500 89.57 / 59.97 71,500 74,500 77,500 105.39 / 84.92 83,000 87,000 89,000 전세 공급/전용(㎡) 하위평균 일반평균 상위평균 77.88 / 59.95 39,250 41,750 44,000 89.57 / 59.97 39,250 41,750 44,000 105.39 / 84.92 48,000 51,500 54,000 월세 공급/전용(㎡) 보증금 월세 77.88 / 59.95 5,000 85 ~ 91 89.57 / 59.97 5,000 85 ~ 91 105.39 / 84.92 8,000 85 ~ 89 마곡서광 서울특별시 강서구 방화동 860 매매 공급/전용(㎡) 하위평균 일반평균 상위평균 79.28 / 59.67 51,000 53,000 56,500 108.38 / 84.93 58,500 60,500 63,000 전세 공급/전용(㎡) 하위평균 일반평균 상위평균 79.28 / 59.67 29,500 31,000 33,000 108.38 / 84.93 34,500 35,500 37,000 월세 공급/전용(㎡) 보증금 월세 79.28 / 59.67 2,000 80 ~ 88 108.38 / 84.93 10,000 70 ~ 80 마곡우림필유 서울특별시 강서구 방화동 876 매매 공급/전용(㎡) 하위평균 일반평균 상위평균 91.71A / 74.94 75,500 78,500 81,500 92.85B / 76.37 76,250 79,250 82,250 94.20 / 77.29 76,250 79,250 82,250 102.76A / 84.52 98,500 103,000 105,500 102.76B / 84.52 98,500 103,000 105,500 103.30C / 84.89 95,500 99,500 102,000 전세 공급/전용(㎡) 하위평균 일반평균 상위평균 91.71A / 74.94 44,000 45,000 46,000 92.85B / 76.37 44,500 45,500 46,500 94.20 / 77.29 44,500 45,500 46,500 102.76A / 84.52 59,500 63,500 66,500 102.76B / 84.52 59,500 63,500 66,500 103.30C / 84.89 57,000 62,000 66,500 월세 공급/전용(㎡) 보증금 월세 91.71A / 74.94 17,000 50 ~ 55 92.85B / 76.37 17,000 53 ~ 60 94.20 / 77.29 17,000 53 ~ 60 102.76A / 84.52 22,000 60 ~ 63 102.76B / 84.52 22,000 60 ~ 63 103.30C / 84.89 22,000 58 ~ 62 마곡청구 서울특별시 강서구 방화동 859 매매 공급/전용(㎡) 하위평균 일반평균 상위평균 77.55 / 59.91 70,000 74,000 76,500 105.73 / 84.92 83,500 87,500 92,000 전세 공급/전용(㎡) 하위평균 일반평균 상위평균 77.55 / 59.91 40,500 43,000 45,500 105.73 / 84.92 46,000 48,500 52,500 월세 공급/전용(㎡) 보증금 월세 77.55 / 59.91 5,000 78 ~ 85 105.73 / 84.92 8,000 78 ~ 85 마곡푸르지오 서울특별시 강서구 방화동 890 매매 공급/전용(㎡) 하위평균 일반평균 상위평균 82.97 / 59.87 90,000 95,000 100,000 103.63 / 84.80 100,000 105,000 110,000 105.82A / 84.99 109,000 116,000 125,000 106.76B / 84.99 109,000 116,000 125,000 138.94 / 114.72 119,000 123,500 129,000 전세 공급/전용(㎡) 하위평균 일반평균 상위평균 82.97 / 59.87 43,000 45,000 50,000 103.63 / 84.80 48,000 52,000 55,500 105.82A / 84.99 53,000 55,500 66,500 106.76B / 84.99 53,000 55,500 66,500 138.94 / 114.72 62,250 66,250 75,500 월세 공급/전용(㎡) 보증금 월세 82.97 / 59.87 - - 103.63 / 84.80 11,000 90 ~ 95 105.82A / 84.99 11,000 90 ~ 95 106.76B / 84.99 11,000 90 ~ 95 138.94 / 114.72 - - 마곡현대 서울특별시 강서구 방화동 863 매매 공급/전용(㎡) 하위평균 일반평균 상위평균 82.25 / 59.92 60,000 64,000 71,000 97.26 / 70.86 73,500 78,000 83,000 106.52 / 84.95 78,500 83,000 87,000 138.80 / 114.30 81,000 85,000 89,000 전세 공급/전용(㎡) 하위평균 일반평균 상위평균 82.25 / 59.92 32,500 33,500 34,500 97.26 / 70.86 34,000 36,000 39,000 106.52 / 84.95 41,000 42,500 44,500 138.80 / 114.30 47,000 49,000 51,000 월세 공급/전용(㎡) 보증금 월세 82.25 / 59.92 5,000 65 ~ 70 97.26 / 70.86 5,000 70 ~ 75 106.52 / 84.95 5,000 75 ~ 80 138.80 / 114.30 - - 방신서광 서울특별시 강서구 방화동 871 매매 공급/전용(㎡) 하위평균 일반평균 상위평균 111.00 / 84.38 56,000 59,500 62,000 132.22 / 100.65 60,500 64,500 67,500 148.23 / 113.33 65,000 68,000 72,000 전세 공급/전용(㎡) 하위평균 일반평균 상위평균 111.00 / 84.38 46,000 48,500 50,000 132.22 / 100.65 48,500 50,500 52,000 148.23 / 113.33 51,000 52,500 54,500 월세 공급/전용(㎡) 보증금 월세 111.00 / 84.38 5,000 80 ~ 88 132.22 / 100.65 10,000 90 ~ 100 148.23 / 113.33 10,000 100 ~ 110 방화(삼익삼환) 서울특별시 강서구 방화동 831 매매 공급/전용(㎡) 하위평균 일반평균 상위평균 122.51삼환 / 100.35 92,500 97,500 104,500 122.51삼익 / 100.35 92,500 97,500 104,500 157.36삼환 / 134.65 101,000 106,000 111,000 158.72삼익 / 134.61 101,000 106,000 111,000 전세 공급/전용(㎡) 하위평균 일반평균 상위평균 122.51삼환 / 100.35 54,000 58,500 63,500 122.51삼익 / 100.35 54,000 58,500 63,500 157.36삼환 / 134.65 59,500 62,500 68,500 158.72삼익 / 134.61 59,500 62,500 68,500 월세 공급/전용(㎡) 보증금 월세 122.51삼환 / 100.35 10,000 100 ~ 120 122.51삼익 / 100.35 10,000 100 ~ 120 157.36삼환 / 134.65 10,000 120 ~ 135 158.72삼익 / 134.61 10,000 120 ~ 135 방화3단지(청솔) 서울특별시 강서구 방화동 832 매매 공급/전용(㎡) 하위평균 일반평균 상위평균 50.41 / 39.36 51,000 53,000 56,000 63.01A / 49.20 65,000 68,000 71,000 63.80B / 49.20 65,000 68,000 71,000 76.56 / 59.04 70,000 73,000 76,000 전세 공급/전용(㎡) 하위평균 일반평균 상위평균 50.41 / 39.36 19,500 20,500 25,500 63.01A / 49.20 30,000 32,000 35,000 63.80B / 49.20 30,000 32,000 35,000 76.56 / 59.04 33,500 35,500 39,000 월세 공급/전용(㎡) 보증금 월세 50.41 / 39.36 2,000 63 ~ 65 63.01A / 49.20 2,000 75 ~ 80 63.80B / 49.20 2,000 75 ~ 80 76.56 / 59.04 5,000 60 ~ 63 방화3차우림필유 서울특별시 강서구 방화동 546-1 매매 공급/전용(㎡) 하위평균 일반평균 상위평균 75.70 / 59.89 60,750 63,750 65,250 94.64 / 74.80 63,000 65,500 68,250 96.14A / 76.21 65,250 67,250 69,750 98.02B / 77.68 65,250 67,250 69,750 104.63 / 83.35 69,750 70,750 72,000 106.62A / 84.57 70,750 72,250 74,250 106.73B / 84.77 70,750 72,250 74,250 125.00 / 99.62 74,000 75,750 77,500 전세 공급/전용(㎡) 하위평균 일반평균 상위평균 75.70 / 59.89 40,500 41,250 42,250 94.64 / 74.80 42,250 43,250 44,250 96.14A / 76.21 43,250 44,250 45,250 98.02B / 77.68 43,250 44,250 45,250 104.63 / 83.35 45,500 46,500 47,500 106.62A / 84.57 46,500 47,500 48,500 106.73B / 84.77 46,500 47,500 48,500 125.00 / 99.62 48,500 49,500 51,250 월세 공급/전용(㎡) 보증금 월세 75.70 / 59.89 3,000 105 ~ 113 94.64 / 74.80 3,000 113 ~ 123 96.14A / 76.21 3,000 115 ~ 125 98.02B / 77.68 3,000 115 ~ 125 104.63 / 83.35 3,000 143 ~ 158 106.62A / 84.57 3,000 153 ~ 163 106.73B / 84.77 3,000 153 ~ 163 125.00 / 99.62 3,000 163 ~ 170 방화5단지(도시개발) 서울특별시 강서구 방화동 814 매매 공급/전용(㎡) 하위평균 일반평균 상위평균 44.38 / 33.18 54,000 56,500 59,000 52.96 / 39.60 57,500 61,500 64,500 66.56 / 49.77 72,500 75,500 79,000 전세 공급/전용(㎡) 하위평균 일반평균 상위평균 44.38 / 33.18 20,000 21,000 22,000 52.96 / 39.60 22,500 23,500 24,500 66.56 / 49.77 28,500 29,500 30,500 월세 공급/전용(㎡) 보증금 월세 44.38 / 33.18 1,000 50 ~ 52 52.96 / 39.60 2,000 50 ~ 55 66.56 / 49.77 2,000 78 ~ 85 방화동2차태승훼미리 서울특별시 강서구 방화동 885 매매 공급/전용(㎡) 하위평균 일반평균 상위평균 102.65A / 81.12 68,750 71,500 73,000 103.77B / 82.05 68,750 71,500 73,000 104.56A / 82.71 68,750 71,500 73,000 105.12B / 83.18 68,750 71,500 73,000 105.59C / 83.57 68,750 71,500 73,000 105.60D / 83.58 68,750 71,500 73,000 105.92E / 83.85 68,750 71,500 73,000 전세 공급/전용(㎡) 하위평균 일반평균 상위평균 102.65A / 81.12 42,500 44,000 46,000 103.77B / 82.05 42,500 44,000 46,000 104.56A / 82.71 42,500 44,000 46,000 105.12B / 83.18 42,500 44,000 46,000 105.59C / 83.57 42,500 44,000 46,000 105.60D / 83.58 42,500 44,000 46,000 105.92E / 83.85 42,500 44,000 46,000 월세 공급/전용(㎡) 보증금 월세 102.65A / 81.12 10,000 105 ~ 115 103.77B / 82.05 10,000 105 ~ 115 104.56A / 82.71 10,000 105 ~ 115 105.12B / 83.18 10,000 105 ~ 115 105.59C / 83.57 10,000 105 ~ 115 105.60D / 83.58 10,000 105 ~ 115 105.92E / 83.85 10,000 105 ~ 115 방화동e-편한세상 서울특별시 강서구 방화동 874 매매 공급/전용(㎡) 하위평균 일반평균 상위평균 78.10 / 59.97 66,500 69,000 71,250 87.15A / 68.47 74,250 76,500 79,000 88.10B / 67.68 74,250 76,500 79,000 88.14C / 67.68 74,250 76,500 79,000 106.58 / 84.67 78,250 81,750 84,750 121.67A / 96.14 80,750 83,750 86,750 121.69B / 96.28 80,750 83,750 86,750 131.66 / 111.07 83,250 86,250 89,250 전세 공급/전용(㎡) 하위평균 일반평균 상위평균 78.10 / 59.97 43,000 44,000 45,000 87.15A / 68.47 45,000 46,000 47,000 88.10B / 67.68 45,000 46,000 47,000 88.14C / 67.68 45,000 46,000 47,000 106.58 / 84.67 47,000 48,000 49,000 121.67A / 96.14 51,000 53,000 55,500 121.69B / 96.28 51,000 53,000 55,500 131.66 / 111.07 55,000 56,250 58,250 월세 공급/전용(㎡) 보증금 월세 78.10 / 59.97 3,000 108 ~ 118 87.15A / 68.47 8,000 103 ~ 113 88.10B / 67.68 8,000 103 ~ 113 88.14C / 67.68 8,000 103 ~ 113 106.58 / 84.67 8,000 123 ~ 133 121.67A / 96.14 8,000 135 ~ 143 121.69B / 96.28 8,000 135 ~ 143 131.66 / 111.07 8,000 143 ~ 150 방화동개화 서울특별시 강서구 방화동 819 매매 공급/전용(㎡) 하위평균 일반평균 상위평균 125.13 / 101.86 83,500 87,000 91,500 160.99 / 133.98 95,500 102,000 107,000 전세 공급/전용(㎡) 하위평균 일반평균 상위평균 125.13 / 101.86 50,000 55,500 60,000 160.99 / 133.98 55,000 60,000 65,000 월세 공급/전용(㎡) 보증금 월세 125.13 / 101.86 10,000 80 ~ 90 160.99 / 133.98 - - 방화동경남 서울특별시 강서구 방화동 207-5 매매 공급/전용(㎡) 하위평균 일반평균 상위평균 104.53A / 84.29 96,000 101,000 106,500 104.62B / 84.83 96,000 101,000 106,500 104.69C / 84.90 96,000 101,000 106,500 104.78D / 84.99 96,000 101,000 106,500 전세 공급/전용(㎡) 하위평균 일반평균 상위평균 104.53A / 84.29 49,000 53,500 58,500 104.62B / 84.83 49,000 53,500 58,500 104.69C / 84.90 49,000 53,500 58,500 104.78D / 84.99 49,000 53,500 58,500 월세 공급/전용(㎡) 보증금 월세 104.53A / 84.29 10,000 68 ~ 73 104.62B / 84.83 10,000 68 ~ 73 104.69C / 84.90 10,000 68 ~ 73 104.78D / 84.99 10,000 68 ~ 73 방화동동부센트레빌(2차) 서울특별시 강서구 방화동 875 매매 공급/전용(㎡) 하위평균 일반평균 상위평균 66.57 / 56.22 47,000 51,000 54,000 80.60 / 68.46 57,000 60,000 63,000 103.19SA / 84.98 79,000 85,000 89,000 103.30N / 84.97 81,000 87,000 91,000 103.30NA / 84.97 79,000 85,000 89,000 103.30S / 84.97 79,000 85,000 89,000 138.47A / 114.99 104,000 111,000 117,000 139.07B / 114.99 104,000 111,000 117,000 전세 공급/전용(㎡) 하위평균 일반평균 상위평균 66.57 / 56.22 25,500 27,500 29,000 80.60 / 68.46 30,000 32,000 35,000 103.19SA / 84.98 44,000 46,500 49,500 103.30N / 84.97 45,000 47,000 50,000 103.30NA / 84.97 44,500 47,000 50,000 103.30S / 84.97 44,000 46,500 49,500 138.47A / 114.99 50,000 52,000 55,000 139.07B / 114.99 50,500 52,500 55,000 월세 공급/전용(㎡) 보증금 월세 66.57 / 56.22 - - 80.60 / 68.46 5,000 80 ~ 90 103.19SA / 84.98 5,000 100 ~ 110 103.30N / 84.97 5,000 100 ~ 110 103.30NA / 84.97 5,000 100 ~ 110 103.30S / 84.97 5,000 100 ~ 110 138.47A / 114.99 - - 139.07B / 114.99 - - 방화동동일스위트2차 서울특별시 강서구 방화동 895 매매 공급/전용(㎡) 하위평균 일반평균 상위평균 80.02A / 59.47 54,500 59,500 65,000 80.72B / 59.65 54,500 59,500 65,000 80.95C / 59.94 54,500 59,500 65,000 81.03B / 59.52 55,500 59,000 64,000 81.28A / 59.03 55,500 59,000 64,000 전세 공급/전용(㎡) 하위평균 일반평균 상위평균 80.02A / 59.47 36,500 39,000 41,500 80.72B / 59.65 36,500 39,000 41,500 80.95C / 59.94 36,500 39,000 41,500 81.03B / 59.52 37,000 39,500 42,000 81.28A / 59.03 37,000 39,500 42,000 월세 공급/전용(㎡) 보증금 월세 80.02A / 59.47 5,000 88 ~ 98 80.72B / 59.65 5,000 88 ~ 98 80.95C / 59.94 5,000 88 ~ 98 81.03B / 59.52 5,000 88 ~ 98 81.28A / 59.03 5,000 88 ~ 98 방화동진로 서울특별시 강서구 방화동 804 매매 공급/전용(㎡) 하위평균 일반평균 상위평균 105.45A / 84.63 64,000 66,500 69,000 105.76B / 84.87 64,000 66,500 69,000 105.86C / 84.96 64,000 66,500 69,000 전세 공급/전용(㎡) 하위평균 일반평균 상위평균 105.45A / 84.63 40,000 42,000 45,000 105.76B / 84.87 40,000 42,000 45,000 105.86C / 84.96 40,000 42,000 45,000 월세 공급/전용(㎡) 보증금 월세 105.45A / 84.63 5,000 90 ~ 90 105.76B / 84.87 5,000 90 ~ 90 105.86C / 84.96 5,000 90 ~ 90 방화동태승훼미리 서울특별시 강서구 방화동 884 매매 공급/전용(㎡) 하위평균 일반평균 상위평균 103.91A / 84.08 71,000 73,000 75,500 104.30B / 84.95 71,000 73,000 75,500 전세 공급/전용(㎡) 하위평균 일반평균 상위평균 103.91A / 84.08 43,000 45,000 46,250 104.30B / 84.95 44,000 45,500 46,750 월세 공급/전용(㎡) 보증금 월세 103.91A / 84.08 5,000 80 ~ 90 104.30B / 84.95 5,000 80 ~ 90 방화동한진로즈힐 서울특별시 강서구 방화동 579 매매 공급/전용(㎡) 하위평균 일반평균 상위평균 81.48 / 59.92 68,000 70,500 74,000 101.14 / 81.68 73,500 77,500 82,000 105.04B / 84.93 84,000 87,500 90,000 105.17A / 84.97 82,500 86,000 89,000 전세 공급/전용(㎡) 하위평균 일반평균 상위평균 81.48 / 59.92 39,500 41,000 43,000 101.14 / 81.68 45,500 48,500 51,000 105.04B / 84.93 50,500 53,500 55,000 105.17A / 84.97 48,000 51,000 53,000 월세 공급/전용(㎡) 보증금 월세 81.48 / 59.92 5,000 70 ~ 78 101.14 / 81.68 5,000 95 ~ 100 105.04B / 84.93 5,000 100 ~ 105 105.17A / 84.97 5,000 100 ~ 105 방화메이빌 서울특별시 강서구 방화동 902 매매 공급/전용(㎡) 하위평균 일반평균 상위평균 85.92 / 44.83 44,000 46,000 47,000 85.92테라스 / 44.83 47,000 47,500 48,000 93.03 / 48.86 45,000 47,000 48,000 93.03테라스 / 48.86 47,000 49,000 50,000 97.53A / 50.50 45,000 47,000 49,000 97.53A테라스 / 50.50 48,000 49,000 50,000 99.55B / 51.89 48,000 49,000 50,000 99.55B테라스 / 51.89 50,000 50,000 50,000 104.32 / 54.15 50,000 51,000 52,000 104.32테라스 / 54.15 51,000 52,000 53,000 전세 공급/전용(㎡) 하위평균 일반평균 상위평균 85.92 / 44.83 28,000 29,000 30,000 85.92테라스 / 44.83 29,000 29,500 30,000 93.03 / 48.86 29,000 30,000 31,000 93.03테라스 / 48.86 30,000 30,500 31,000 97.53A / 50.50 32,000 33,000 34,000 97.53A테라스 / 50.50 33,000 33,500 34,000 99.55B / 51.89 33,000 33,500 34,000 99.55B테라스 / 51.89 34,000 34,500 35,000 104.32 / 54.15 33,000 34,000 35,000 104.32테라스 / 54.15 34,000 34,500 35,000 월세 공급/전용(㎡) 보증금 월세 85.92 / 44.83 2,000 70 ~ 75 85.92테라스 / 44.83 - - 93.03 / 48.86 2,000 75 ~ 80 93.03테라스 / 48.86 - - 97.53A / 50.50 2,000 80 ~ 85 97.53A테라스 / 50.50 - - 99.55B / 51.89 2,000 85 ~ 90 99.55B테라스 / 51.89 - - 104.32 / 54.15 2,000 90 ~ 95 104.32테라스 / 54.15 - - 방화현대 서울특별시 강서구 방화동 793 매매 공급/전용(㎡) 하위평균 일반평균 상위평균 72.46 / 59.89 59,500 62,500 64,500 102.73 / 84.99 76,000 78,500 82,500 전세 공급/전용(㎡) 하위평균 일반평균 상위평균 72.46 / 59.89 35,500 37,500 40,000 102.73 / 84.99 42,500 45,500 47,500 월세 공급/전용(㎡) 보증금 월세 72.46 / 59.89 10,000 68 ~ 70 102.73 / 84.99 10,000 85 ~ 95 보람쉬움 서울특별시 강서구 방화동 881 매매 공급/전용(㎡) 하위평균 일반평균 상위평균 106.89A / 84.96 70,000 75,000 79,000 107.17B / 84.98 70,000 75,000 79,000 전세 공급/전용(㎡) 하위평균 일반평균 상위평균 106.89A / 84.96 50,000 51,000 53,000 107.17B / 84.98 50,000 51,000 53,000 월세 공급/전용(㎡) 보증금 월세 106.89A / 84.96 10,000 100 ~ 100 107.17B / 84.98 10,000 100 ~ 100 삼미 서울특별시 강서구 방화동 585-4 매매 공급/전용(㎡) 하위평균 일반평균 상위평균 62.81 / 49.36 55,000 58,000 61,000 82.65 / 64.23 65,750 69,250 73,750 전세 공급/전용(㎡) 하위평균 일반평균 상위평균 62.81 / 49.36 11,500 12,500 13,500 82.65 / 64.23 13,500 14,500 16,000 월세 공급/전용(㎡) 보증금 월세 62.81 / 49.36 1,000 50 ~ 50 82.65 / 64.23 1,000 58 ~ 60 삼성꽃마을 서울특별시 강서구 방화동 858 매매 공급/전용(㎡) 하위평균 일반평균 상위평균 76.18 / 59.99 62,000 67,000 70,000 85.09 / 67.01 63,500 68,000 71,500 90.39 / 77.75 63,500 68,000 71,500 98.14 / 84.41 63,500 68,000 71,500 107.19 / 84.41 69,000 74,500 77,000 107.53A / 84.68 69,000 74,500 77,000 107.83B / 84.92 69,000 74,500 77,000 전세 공급/전용(㎡) 하위평균 일반평균 상위평균 76.18 / 59.99 36,500 38,500 39,500 85.09 / 67.01 36,500 38,500 39,500 90.39 / 77.75 36,500 38,500 39,500 98.14 / 84.41 36,500 38,500 39,500 107.19 / 84.41 44,500 46,500 49,500 107.53A / 84.68 44,500 46,500 49,500 107.83B / 84.92 44,500 46,500 49,500 월세 공급/전용(㎡) 보증금 월세 76.18 / 59.99 5,000 75 ~ 80 85.09 / 67.01 5,000 78 ~ 83 90.39 / 77.75 5,000 78 ~ 83 98.14 / 84.41 5,000 85 ~ 95 107.19 / 84.41 5,000 100 ~ 110 107.53A / 84.68 5,000 100 ~ 110 107.83B / 84.92 5,000 100 ~ 110 삼정코아 서울특별시 강서구 방화동 567-4 매매 공급/전용(㎡) 하위평균 일반평균 상위평균 91.21 / 71.18 41,500 44,000 46,000 109.08A / 83.23 47,500 50,000 52,500 110.45B / 83.74 47,500 50,000 52,500 전세 공급/전용(㎡) 하위평균 일반평균 상위평균 91.21 / 71.18 28,000 31,000 35,500 109.08A / 83.23 36,000 38,000 40,000 110.45B / 83.74 36,500 38,500 41,000 월세 공급/전용(㎡) 보증금 월세 91.21 / 71.18 - - 109.08A / 83.23 10,000 55 ~ 60 110.45B / 83.74 10,000 60 ~ 65 승윤노블리안 서울특별시 강서구 방화동 892 매매 공급/전용(㎡) 하위평균 일반평균 상위평균 102.57A / 83.69 60,750 66,750 70,250 102.64B / 83.92 60,750 66,750 70,250 102.78C / 84.64 60,750 66,750 70,250 103.20D / 84.66 60,750 66,750 70,250 103.65E / 84.97 60,750 66,750 70,250 전세 공급/전용(㎡) 하위평균 일반평균 상위평균 102.57A / 83.69 45,000 47,500 51,000 102.64B / 83.92 45,000 47,500 51,000 102.78C / 84.64 45,000 47,500 51,000 103.20D / 84.66 45,000 47,500 51,000 103.65E / 84.97 45,000 47,500 51,000 월세 공급/전용(㎡) 보증금 월세 102.57A / 83.69 5,000 100 ~ 120 102.64B / 83.92 5,000 100 ~ 120 102.78C / 84.64 5,000 100 ~ 120 103.20D / 84.66 5,000 100 ~ 120 103.65E / 84.97 5,000 100 ~ 120 신동아 서울특별시 강서구 방화동 796 매매 공급/전용(㎡) 하위평균 일반평균 상위평균 83.80A / 59.40 62,000 64,500 67,500 83.80B / 59.40 62,000 64,500 67,500 107.76 / 84.81 73,500 76,500 79,500 166.42 / 130.98 77,000 80,500 84,000 전세 공급/전용(㎡) 하위평균 일반평균 상위평균 83.80A / 59.40 32,000 33,000 34,500 83.80B / 59.40 32,000 33,000 34,500 107.76 / 84.81 39,500 41,500 44,500 166.42 / 130.98 47,500 49,000 50,500 월세 공급/전용(㎡) 보증금 월세 83.80A / 59.40 10,000 63 ~ 68 83.80B / 59.40 10,000 63 ~ 68 107.76 / 84.81 10,000 75 ~ 85 166.42 / 130.98 10,000 105 ~ 120 신안네트빌 2단지 서울특별시 강서구 방화동 869 매매 공급/전용(㎡) 하위평균 일반평균 상위평균 88.29 / 57.16 52,500 55,750 57,750 115.89 / 84.01 60,500 63,500 66,500 전세 공급/전용(㎡) 하위평균 일반평균 상위평균 88.29 / 57.16 35,750 36,750 37,750 115.89 / 84.01 40,250 42,500 44,250 월세 공급/전용(㎡) 보증금 월세 88.29 / 57.16 3,000 95 ~ 110 115.89 / 84.01 5,000 115 ~ 125 신안네트빌1단지 서울특별시 강서구 방화동 868 매매 공급/전용(㎡) 하위평균 일반평균 상위평균 83.96 / 57.74 57,000 59,000 62,000 115.40 / 84.01 71,500 74,250 77,500 122.58 / 91.97 73,500 77,000 80,500 146.09 / 114.30 76,500 80,000 84,000 148.78 / 118.17 76,500 80,000 84,000 전세 공급/전용(㎡) 하위평균 일반평균 상위평균 83.96 / 57.74 36,000 38,000 41,000 115.40 / 84.01 42,500 44,500 47,500 122.58 / 91.97 43,000 45,000 48,000 146.09 / 114.30 47,500 49,500 52,500 148.78 / 118.17 48,000 50,500 53,500 월세 공급/전용(㎡) 보증금 월세 83.96 / 57.74 5,000 70 ~ 80 115.40 / 84.01 5,000 100 ~ 110 122.58 / 91.97 - - 146.09 / 114.30 - - 148.78 / 118.17 - - 에어팰리스(도) 서울특별시 강서구 방화동 619-7 매매 공급/전용(㎡) 하위평균 일반평균 상위평균 23.04B / 14.10 9,500 9,600 9,750 23.70C / 14.50 10,000 10,300 10,400 전세 공급/전용(㎡) 하위평균 일반평균 상위평균 23.04B / 14.10 9,300 9,500 9,650 23.70C / 14.50 9,875 10,000 10,250 월세 공급/전용(㎡) 보증금 월세 23.04B / 14.10 1,000 44 ~ 45 23.70C / 14.50 1,000 45 ~ 48 우림루미아트 서울특별시 강서구 방화동 873 매매 공급/전용(㎡) 하위평균 일반평균 상위평균 73.92 / 59.90 62,500 66,500 67,500 104.05A / 84.97 73,500 75,500 75,750 104.05B / 84.97 73,500 75,500 75,750 전세 공급/전용(㎡) 하위평균 일반평균 상위평균 73.92 / 59.90 43,000 45,500 46,250 104.05A / 84.97 49,500 51,500 52,250 104.05B / 84.97 49,500 51,500 52,250 월세 공급/전용(㎡) 보증금 월세 73.92 / 59.90 - - 104.05A / 84.97 3,000 120 ~ 120 104.05B / 84.97 3,000 120 ~ 120 원미. 서울특별시 강서구 방화동 614-11 매매 공급/전용(㎡) 하위평균 일반평균 상위평균 74.75 / 54.75 73,500 74,500 75,500 83.16 / 63.06 74,500 75,500 76,500 전세 공급/전용(㎡) 하위평균 일반평균 상위평균 74.75 / 54.75 9,000 10,000 11,000 83.16 / 63.06 11,000 12,000 13,000 월세 공급/전용(㎡) 보증금 월세 74.75 / 54.75 2,500 45 ~ 50 83.16 / 63.06 2,500 48 ~ 53 월드메르디앙 서울특별시 강서구 방화동 878 매매 공급/전용(㎡) 하위평균 일반평균 상위평균 79.94 / 61.75 56,000 63,000 66,500 85.36 / 66.76 59,500 65,500 69,000 85.69A / 66.76 59,500 65,500 69,000 97.29 / 76.21 64,000 69,000 73,000 105.87B / 83.42 74,000 77,500 81,000 105.87D / 83.42 74,000 77,500 81,000 106.66C / 84.82 74,000 77,500 81,000 106.83A / 84.93 74,000 77,500 81,000 107.24E / 84.93 74,000 77,500 81,000 전세 공급/전용(㎡) 하위평균 일반평균 상위평균 79.94 / 61.75 36,500 38,500 42,000 85.36 / 66.76 38,000 40,000 43,000 85.69A / 66.76 38,000 40,000 43,000 97.29 / 76.21 44,000 46,000 48,500 105.87B / 83.42 48,000 50,500 53,500 105.87D / 83.42 48,000 50,500 53,500 106.66C / 84.82 48,000 50,500 53,500 106.83A / 84.93 48,000 50,500 53,500 107.24E / 84.93 48,000 50,500 53,500 월세 공급/전용(㎡) 보증금 월세 79.94 / 61.75 - - 85.36 / 66.76 5,000 90 ~ 100 85.69A / 66.76 5,000 90 ~ 100 97.29 / 76.21 5,000 105 ~ 115 105.87B / 83.42 5,000 120 ~ 130 105.87D / 83.42 5,000 120 ~ 130 106.66C / 84.82 5,000 120 ~ 130 106.83A / 84.93 5,000 120 ~ 130 107.24E / 84.93 5,000 120 ~ 130 일성트루엘 서울특별시 강서구 방화동 897 매매 공급/전용(㎡) 하위평균 일반평균 상위평균 79.41 / 59.97 76,500 82,250 85,500 94.94 / 72.03 79,000 88,000 91,000 111.93 / 84.95 86,000 91,500 94,500 전세 공급/전용(㎡) 하위평균 일반평균 상위평균 79.41 / 59.97 46,000 48,500 50,500 94.94 / 72.03 48,000 50,500 53,000 111.93 / 84.95 52,000 56,000 59,500 월세 공급/전용(㎡) 보증금 월세 79.41 / 59.97 5,000 105 ~ 110 94.94 / 72.03 5,000 115 ~ 120 111.93 / 84.95 5,000 125 ~ 130 장미 서울특별시 강서구 방화동 841 매매 공급/전용(㎡) 하위평균 일반평균 상위평균 52.77 / 39.96 52,500 56,500 60,000 65.58 / 49.20 57,500 61,500 65,000 77.96 / 59.04 61,500 65,500 69,000 전세 공급/전용(㎡) 하위평균 일반평균 상위평균 52.77 / 39.96 18,000 19,500 20,500 65.58 / 49.20 21,000 22,000 23,000 77.96 / 59.04 23,000 25,000 28,500 월세 공급/전용(㎡) 보증금 월세 52.77 / 39.96 4,000 38 ~ 43 65.58 / 49.20 4,000 43 ~ 48 77.96 / 59.04 5,000 63 ~ 68 청성 서울특별시 강서구 방화동 877 매매 공급/전용(㎡) 하위평균 일반평균 상위평균 87.67 / 67.87 51,500 54,000 56,500 89.52 / 69.53 52,250 54,750 57,250 전세 공급/전용(㎡) 하위평균 일반평균 상위평균 87.67 / 67.87 35,000 37,000 38,500 89.52 / 69.53 36,500 38,000 39,500 월세 공급/전용(㎡) 보증금 월세 87.67 / 67.87 5,000 83 ~ 88 89.52 / 69.53 5,000 95 ~ 100 치현마을동일스위트리버 서울특별시 강서구 방화동 880 매매 공급/전용(㎡) 하위평균 일반평균 상위평균 79.64 / 59.98 59,500 64,500 67,500 81.20B / 59.98 59,500 64,500 67,500 106.06A / 84.98 74,000 78,000 82,000 106.16B / 84.98 74,000 78,000 82,000 107.84C / 84.98 74,000 78,000 82,000 109.39A / 84.95 74,000 78,000 82,000 119.50A / 84.98 75,000 79,000 83,000 119.51B / 84.98 75,000 79,000 83,000 121.45A / 84.95 75,000 79,000 83,000 전세 공급/전용(㎡) 하위평균 일반평균 상위평균 79.64 / 59.98 33,500 36,000 38,500 81.20B / 59.98 33,500 36,000 38,500 106.06A / 84.98 40,000 42,500 45,500 106.16B / 84.98 40,000 42,500 45,500 107.84C / 84.98 40,000 42,500 45,500 109.39A / 84.95 40,000 42,500 45,500 119.50A / 84.98 41,000 44,000 47,500 119.51B / 84.98 41,000 44,000 47,500 121.45A / 84.95 41,000 44,000 47,500 월세 공급/전용(㎡) 보증금 월세 79.64 / 59.98 5,000 80 ~ 90 81.20B / 59.98 5,000 80 ~ 90 106.06A / 84.98 5,000 125 ~ 135 106.16B / 84.98 5,000 125 ~ 135 107.84C / 84.98 5,000 125 ~ 135 109.39A / 84.95 5,000 125 ~ 135 119.50A / 84.98 - - 119.51B / 84.98 - - 121.45A / 84.95 - - 한미 서울특별시 강서구 방화동 286-1 매매 공급/전용(㎡) 하위평균 일반평균 상위평균 54.27 / 40.02 46,000 49,000 53,000 62.53 / 47.22 55,500 58,500 62,500 전세 공급/전용(㎡) 하위평균 일반평균 상위평균 54.27 / 40.02 18,000 19,000 20,000 62.53 / 47.22 20,000 21,500 24,500 월세 공급/전용(㎡) 보증금 월세 54.27 / 40.02 2,000 48 ~ 55 62.53 / 47.22 3,000 55 ~ 59 한숲마을대림 서울특별시 강서구 방화동 862 매매 공급/전용(㎡) 하위평균 일반평균 상위평균 76.03A / 59.69 64,000 67,000 69,000 76.34B / 59.94 64,000 67,000 69,000 108.05A / 84.83 77,000 79,000 81,000 108.24B / 84.97 77,000 79,000 81,000 전세 공급/전용(㎡) 하위평균 일반평균 상위평균 76.03A / 59.69 30,000 32,000 37,000 76.34B / 59.94 30,000 32,000 37,000 108.05A / 84.83 35,000 38,000 43,000 108.24B / 84.97 35,000 38,000 43,000 월세 공급/전용(㎡) 보증금 월세 76.03A / 59.69 5,000 80 ~ 85 76.34B / 59.94 5,000 80 ~ 85 108.05A / 84.83 5,000 105 ~ 110 108.24B / 84.97 5,000 105 ~ 110 한오. 서울특별시 강서구 방화동 547-11 매매 공급/전용(㎡) 하위평균 일반평균 상위평균 61.36A / 47.06 26,750 27,750 29,750 61.74B / 47.42 26,750 27,750 29,750 61.81C / 47.44 26,750 27,750 29,750 전세 공급/전용(㎡) 하위평균 일반평균 상위평균 61.36A / 47.06 14,750 15,750 16,500 61.74B / 47.42 14,750 15,750 16,500 61.81C / 47.44 14,750 15,750 16,500 월세 공급/전용(㎡) 보증금 월세 61.36A / 47.06 1,000 48 ~ 55 61.74B / 47.42 1,000 48 ~ 55 61.81C / 47.44 1,000 48 ~ 55 형제. 서울특별시 강서구 방화동 615-103 매매 공급/전용(㎡) 하위평균 일반평균 상위평균 73.92 / 62.25 74,000 76,500 79,000 76.83 / 62.25 74,000 76,500 79,000 80.03 / 66.42 79,000 81,500 84,000 전세 공급/전용(㎡) 하위평균 일반평균 상위평균 73.92 / 62.25 11,000 11,750 12,500 76.83 / 62.25 11,000 11,750 12,500 80.03 / 66.42 12,000 12,750 13,500 월세 공급/전용(㎡) 보증금 월세 73.92 / 62.25 2,500 45 ~ 50 76.83 / 62.25 2,500 45 ~ 50 80.03 / 66.42 2,500 45 ~ 50 홍익 서울특별시 강서구 방화동 861 매매 공급/전용(㎡) 하위평균 일반평균 상위평균 86.23 / 64.44 42,000 43,250 44,500 94.27A / 70.44 44,000 44,750 46,000 96.57B / 72.16 44,000 44,750 46,000 97.62 / 72.95 44,000 44,750 46,000 97.76 / 73.05 44,000 44,750 46,000 전세 공급/전용(㎡) 하위평균 일반평균 상위평균 86.23 / 64.44 29,000 30,500 32,000 94.27A / 70.44 29,250 30,750 32,000 96.57B / 72.16 29,250 30,750 32,000 97.62 / 72.95 29,250 30,750 32,000 97.76 / 73.05 29,250 30,750 32,000 월세 공급/전용(㎡) 보증금 월세 86.23 / 64.44 4,000 68 ~ 70 94.27A / 70.44 4,000 70 ~ 75 96.57B / 72.16 4,000 70 ~ 75 97.62 / 72.95 4,000 70 ~ 75 97.76 / 73.05 4,000 70 ~ 75 9호선전세,9호선월세,강서구월세,강서구전세,월세 태그 #강서구아파트 #강서구아파트시세 #강서구아파트매매 #강서구아파트전세 #강서구아파트월세 #9호선매매 #9호선전세 #9호선월세 #강서구월세 #강서구전세 #월세 태그수정 공감해요 1 이 글에 공감한 블로거 열고 닫기 댓글 쓰기 이 글에 댓글 단 블로거 열고 닫기 카페 보내기Keep 보내기메모 보내기기타 보내기 펼치기 수정 삭제 설정 강서구아파트,강서구아파트시세,강서구아파트매매,강서구아파트전세,강서구아파트월세,9호선매매,9호선전세,9호선월세,강서구월세,강서구전세,월세 강서구아파트 2021. 12. 28. 15:48 수정 삭제 복사https://blog.naver.com/sungsilhyo/222606764715 통계보기 강서월드메르디앙 서울특별시 강서구 내발산동 659-1 매매 공급/전용(㎡) 하위평균 일반평균 상위평균 76.21 / 59.60 65,000 69,000 73,000 107.48 / 84.89 92,000 96,000 100,000 141.38 / 112.69 103,000 108,000 112,000 전세 공급/전용(㎡) 하위평균 일반평균 상위평균 76.21 / 59.60 40,000 45,000 50,000 107.48 / 84.89 53,000 68,000 73,000 141.38 / 112.69 70,000 75,000 80,000 월세 공급/전용(㎡) 보증금 월세 76.21 / 59.60 10,000 80 ~ 85 107.48 / 84.89 10,000 100 ~ 100 141.38 / 112.69 - - 길성그랑프리텔 서울특별시 강서구 내발산동 730 매매 공급/전용(㎡) 하위평균 일반평균 상위평균 92.06 / 71.51 64,250 68,500 69,750 96.91 / 75.49 66,250 69,500 71,250 108.79 / 84.99 75,000 80,000 82,000 전세 공급/전용(㎡) 하위평균 일반평균 상위평균 92.06 / 71.51 46,750 47,750 48,250 96.91 / 75.49 47,250 48,000 49,250 108.79 / 84.99 55,000 57,000 59,750 월세 공급/전용(㎡) 보증금 월세 92.06 / 71.51 10,000 100 ~ 123 96.91 / 75.49 10,000 105 ~ 125 108.79 / 84.99 10,000 120 ~ 140 내츄럴3차 서울특별시 강서구 내발산동 688-21 매매 공급/전용(㎡) 하위평균 일반평균 상위평균 101.97B / 84.99 70,000 74,500 76,250 101.99A / 84.40 70,000 74,500 76,250 전세 공급/전용(㎡) 하위평균 일반평균 상위평균 101.97B / 84.99 54,250 56,000 57,250 101.99A / 84.40 54,250 56,000 57,250 월세 공급/전용(㎡) 보증금 월세 101.97B / 84.99 10,000 120 ~ 135 101.99A / 84.40 10,000 120 ~ 135 롯데(우장산롯데1차) 서울특별시 강서구 내발산동 728 매매 공급/전용(㎡) 하위평균 일반평균 상위평균 71.99 / 55.36 53,500 55,500 58,000 107.90A / 84.48 70,000 74,000 78,000 107.94B / 84.51 70,000 74,000 78,000 108.25C / 84.61 70,000 74,000 78,000 121.16 / 95.54 74,000 78,000 82,000 137.08 / 108.46 72,500 76,000 80,000 전세 공급/전용(㎡) 하위평균 일반평균 상위평균 71.99 / 55.36 34,500 36,500 38,500 107.90A / 84.48 45,000 47,000 50,000 107.94B / 84.51 45,000 47,000 50,000 108.25C / 84.61 45,000 47,000 50,000 121.16 / 95.54 49,500 51,500 54,000 137.08 / 108.46 53,000 55,000 57,000 월세 공급/전용(㎡) 보증금 월세 71.99 / 55.36 10,000 68 ~ 78 107.90A / 84.48 10,000 90 ~ 100 107.94B / 84.51 10,000 90 ~ 100 108.25C / 84.61 10,000 90 ~ 100 121.16 / 95.54 10,000 110 ~ 120 137.08 / 108.46 10,000 125 ~ 140 마곡수명산파크1단지 서울특별시 강서구 내발산동 742 매매 공급/전용(㎡) 하위평균 일반평균 상위평균 107.45F / 84.53 108,500 118,500 126,500 107.65A / 84.68 108,500 118,500 126,500 107.73F1 / 84.75 108,500 118,500 126,500 107.82B / 84.82 108,500 118,500 126,500 전세 공급/전용(㎡) 하위평균 일반평균 상위평균 107.45F / 84.53 61,500 65,500 69,500 107.65A / 84.68 61,500 65,500 69,500 107.73F1 / 84.75 61,500 65,500 69,500 107.82B / 84.82 61,500 65,500 69,500 월세 공급/전용(㎡) 보증금 월세 107.45F / 84.53 10,000 123 ~ 133 107.65A / 84.68 10,000 123 ~ 133 107.73F1 / 84.75 10,000 123 ~ 133 107.82B / 84.82 10,000 123 ~ 133 마곡수명산파크2단지 서울특별시 강서구 내발산동 741 매매 공급/전용(㎡) 하위평균 일반평균 상위평균 108.37F / 84.53 108,500 116,000 123,000 108.82A1 / 84.68 108,500 116,000 123,000 108.98B / 84.82 108,500 116,000 123,000 109.13F1 / 84.75 108,500 116,000 123,000 전세 공급/전용(㎡) 하위평균 일반평균 상위평균 108.37F / 84.53 59,500 65,500 69,500 108.82A1 / 84.68 59,500 65,500 69,500 108.98B / 84.82 59,500 65,500 69,500 109.13F1 / 84.75 59,500 65,500 69,500 월세 공급/전용(㎡) 보증금 월세 108.37F / 84.53 10,000 123 ~ 133 108.82A1 / 84.68 10,000 123 ~ 133 108.98B / 84.82 10,000 123 ~ 133 109.13F1 / 84.75 10,000 123 ~ 133 마곡수명산파크3단지 서울특별시 강서구 내발산동 751 매매 공급/전용(㎡) 하위평균 일반평균 상위평균 108.59D / 84.76 115,000 121,500 129,000 108.91F / 84.53 115,000 121,500 129,000 108.91E / 84.96 115,000 121,500 129,000 전세 공급/전용(㎡) 하위평균 일반평균 상위평균 108.59D / 84.76 60,500 63,500 68,000 108.91F / 84.53 60,500 63,500 68,000 108.91E / 84.96 60,500 63,500 68,000 월세 공급/전용(㎡) 보증금 월세 108.59D / 84.76 10,000 120 ~ 130 108.91F / 84.53 10,000 120 ~ 130 108.91E / 84.96 10,000 120 ~ 130 마곡수명산파크4단지 서울특별시 강서구 내발산동 753 매매 공급/전용(㎡) 하위평균 일반평균 상위평균 79.38B / 59.84 85,500 88,500 92,500 111.33D / 84.76 98,500 107,000 112,000 111.64F / 84.53 98,500 107,000 112,000 111.66E / 84.96 98,500 107,000 112,000 전세 공급/전용(㎡) 하위평균 일반평균 상위평균 79.38B / 59.84 51,000 52,000 54,500 111.33D / 84.76 57,500 60,000 63,000 111.64F / 84.53 57,500 60,000 63,000 111.66E / 84.96 57,500 60,000 63,000 월세 공급/전용(㎡) 보증금 월세 79.38B / 59.84 5,000 100 ~ 115 111.33D / 84.76 10,000 120 ~ 130 111.64F / 84.53 10,000 120 ~ 130 111.66E / 84.96 10,000 120 ~ 130 마곡수명산파크5단지 서울특별시 강서구 내발산동 749 매매 공급/전용(㎡) 하위평균 일반평균 상위평균 80.21A / 59.76 92,500 96,000 101,000 80.26C / 59.84 92,500 96,000 101,000 80.32B / 59.87 92,500 96,000 101,000 전세 공급/전용(㎡) 하위평균 일반평균 상위평균 80.21A / 59.76 51,500 53,000 55,500 80.26C / 59.84 51,500 53,000 55,500 80.32B / 59.87 51,500 53,000 55,500 월세 공급/전용(㎡) 보증금 월세 80.21A / 59.76 5,000 100 ~ 115 80.26C / 59.84 5,000 100 ~ 115 80.32B / 59.87 5,000 100 ~ 115 마곡수명산파크6단지 서울특별시 강서구 내발산동 759 매매 공급/전용(㎡) 하위평균 일반평균 상위평균 107.57F / 84.53 95,000 99,000 105,000 108.03A / 84.68 95,000 99,000 105,000 108.18B / 84.82 95,000 99,000 105,000 전세 공급/전용(㎡) 하위평균 일반평균 상위평균 107.57F / 84.53 57,000 60,000 63,000 108.03A / 84.68 57,000 60,000 63,000 108.18B / 84.82 57,000 60,000 63,000 월세 공급/전용(㎡) 보증금 월세 107.57F / 84.53 5,000 120 ~ 133 108.03A / 84.68 5,000 120 ~ 133 108.18B / 84.82 5,000 120 ~ 133 마곡수명산파크7단지 서울특별시 강서구 내발산동 756 매매 공급/전용(㎡) 하위평균 일반평균 상위평균 109.15F / 84.53 89,500 92,500 96,000 109.61A / 84.68 89,500 92,500 96,000 109.76B / 84.82 89,500 92,500 96,000 전세 공급/전용(㎡) 하위평균 일반평균 상위평균 109.15F / 84.53 56,500 59,000 60,500 109.61A / 84.68 56,500 59,000 60,500 109.76B / 84.82 56,500 59,000 60,500 월세 공급/전용(㎡) 보증금 월세 109.15F / 84.53 10,000 110 ~ 128 109.61A / 84.68 10,000 110 ~ 128 109.76B / 84.82 10,000 110 ~ 128 보람 서울특별시 강서구 내발산동 686-1 매매 공급/전용(㎡) 하위평균 일반평균 상위평균 105.13 / 84.03 65,500 71,500 73,000 전세 공급/전용(㎡) 하위평균 일반평균 상위평균 105.13 / 84.03 51,500 54,000 55,250 월세 공급/전용(㎡) 보증금 월세 105.13 / 84.03 10,000 113 ~ 125 수산오성 서울특별시 강서구 내발산동 721-3 매매 공급/전용(㎡) 하위평균 일반평균 상위평균 101.66A / 82.50 59,500 63,000 66,500 102.66B / 82.04 59,500 63,000 66,500 104.46A / 77.83 59,500 63,000 66,500 104.86B / 84.94 62,500 66,000 69,500 114.33 / 84.98 62,500 66,000 69,500 전세 공급/전용(㎡) 하위평균 일반평균 상위평균 101.66A / 82.50 40,500 42,500 44,500 102.66B / 82.04 40,500 42,500 44,500 104.46A / 77.83 40,500 42,500 44,500 104.86B / 84.94 44,500 46,500 49,500 114.33 / 84.98 44,500 46,500 49,500 월세 공급/전용(㎡) 보증금 월세 101.66A / 82.50 10,000 70 ~ 90 102.66B / 82.04 10,000 70 ~ 90 104.46A / 77.83 10,000 70 ~ 90 104.86B / 84.94 10,000 80 ~ 100 114.33 / 84.98 10,000 70 ~ 100 우장산롯데2차 서울특별시 강서구 내발산동 729 매매 공급/전용(㎡) 하위평균 일반평균 상위평균 74.59 / 59.89 60,000 64,000 67,500 105.22 / 84.70 75,000 79,000 83,000 141.43 / 113.68 78,000 81,000 85,000 전세 공급/전용(㎡) 하위평균 일반평균 상위평균 74.59 / 59.89 41,000 43,500 46,500 105.22 / 84.70 50,000 52,000 55,000 141.43 / 113.68 55,000 56,500 59,000 월세 공급/전용(㎡) 보증금 월세 74.59 / 59.89 10,000 80 ~ 90 105.22 / 84.70 10,000 100 ~ 125 141.43 / 113.68 10,000 125 ~ 140 우장산월드메르디앙 서울특별시 강서구 내발산동 734 매매 공급/전용(㎡) 하위평균 일반평균 상위평균 105.30A / 84.44 78,000 82,000 85,000 105.30B / 84.44 78,000 82,000 85,000 전세 공급/전용(㎡) 하위평균 일반평균 상위평균 105.30A / 84.44 50,000 52,000 55,000 105.30B / 84.44 50,000 52,000 55,000 월세 공급/전용(㎡) 보증금 월세 105.30A / 84.44 10,000 100 ~ 125 105.30B / 84.44 10,000 100 ~ 125 우장산타워빌 서울특별시 강서구 내발산동 704-2 매매 공급/전용(㎡) 하위평균 일반평균 상위평균 69.19A / 56.37 36,250 39,500 41,000 69.83B / 57.18 36,250 39,500 41,000 92.63 / 76.20 48,000 50,500 52,500 97.85 / 80.24 56,000 62,250 64,500 102.34A / 83.80 70,500 75,500 77,250 103.13B / 84.53 70,500 75,500 77,250 103.55C / 84.60 70,500 75,500 77,250 177.08 / 144.31 74,000 77,500 80,000 전세 공급/전용(㎡) 하위평균 일반평균 상위평균 69.19A / 56.37 30,500 31,750 32,500 69.83B / 57.18 30,500 31,750 32,500 92.63 / 76.20 38,250 39,500 40,500 97.85 / 80.24 44,000 45,500 47,500 102.34A / 83.80 51,000 52,000 52,500 103.13B / 84.53 51,000 52,000 52,500 103.55C / 84.60 51,000 52,000 52,500 177.08 / 144.31 55,000 56,750 57,250 월세 공급/전용(㎡) 보증금 월세 69.19A / 56.37 - - 69.83B / 57.18 - - 92.63 / 76.20 - - 97.85 / 80.24 10,000 95 ~ 108 102.34A / 83.80 10,000 115 ~ 130 103.13B / 84.53 10,000 115 ~ 130 103.55C / 84.60 10,000 115 ~ 130 177.08 / 144.31 - - 우장산힐스테이트 서울특별시 강서구 내발산동 657 매매 공급/전용(㎡) 하위평균 일반평균 상위평균 79.32 / 59.98 110,000 117,000 122,500 109.07 / 84.98 131,500 142,000 148,000 112.35 / 84.98 131,500 142,000 148,000 132.03 / 101.87 140,000 147,500 154,000 158.65 / 126.65 153,500 159,500 164,500 전세 공급/전용(㎡) 하위평균 일반평균 상위평균 79.32 / 59.98 58,500 60,500 63,500 109.07 / 84.98 75,000 77,000 79,500 112.35 / 84.98 75,000 77,000 79,500 132.03 / 101.87 81,000 84,500 87,500 158.65 / 126.65 83,750 87,250 91,250 월세 공급/전용(㎡) 보증금 월세 79.32 / 59.98 10,000 100 ~ 110 109.07 / 84.98 10,000 130 ~ 140 112.35 / 84.98 10,000 130 ~ 140 132.03 / 101.87 10,000 150 ~ 160 158.65 / 126.65 - - 청솔샤르망 서울특별시 강서구 내발산동 676-23 매매 공급/전용(㎡) 하위평균 일반평균 상위평균 101.05A / 84.31 67,000 73,500 77,000 101.14E / 84.65 67,000 73,500 77,000 101.59G / 84.74 67,000 73,500 77,000 102.29B / 84.41 67,000 73,500 77,000 102.29H / 84.74 67,000 73,500 77,000 102.82C / 84.53 67,000 73,500 77,000 103.40D / 84.60 67,000 73,500 77,000 103.42F / 84.67 67,000 73,500 77,000 104.25D / 84.88 67,000 73,500 77,000 105.24B / 84.58 67,000 73,500 77,000 105.32C / 84.80 67,000 73,500 77,000 106.27A / 84.31 67,000 73,500 77,000 전세 공급/전용(㎡) 하위평균 일반평균 상위평균 101.05A / 84.31 55,000 57,500 58,750 101.14E / 84.65 55,000 57,500 58,750 101.59G / 84.74 55,000 57,500 58,750 102.29B / 84.41 55,000 57,500 58,750 102.29H / 84.74 55,000 57,500 58,750 102.82C / 84.53 55,000 57,500 58,750 103.40D / 84.60 55,000 57,500 58,750 103.42F / 84.67 55,000 57,500 58,750 104.25D / 84.88 55,000 57,500 58,750 105.24B / 84.58 55,000 57,500 58,750 105.32C / 84.80 55,000 57,500 58,750 106.27A / 84.31 55,000 57,500 58,750 월세 공급/전용(㎡) 보증금 월세 101.05A / 84.31 10,000 133 ~ 148 101.14E / 84.65 10,000 133 ~ 148 101.59G / 84.74 10,000 133 ~ 148 102.29B / 84.41 10,000 133 ~ 148 102.29H / 84.74 10,000 133 ~ 148 102.82C / 84.53 10,000 133 ~ 148 103.40D / 84.60 10,000 133 ~ 148 103.42F / 84.67 10,000 133 ~ 148 104.25D / 84.88 10,000 133 ~ 148 105.24B / 84.58 10,000 133 ~ 148 105.32C / 84.80 10,000 133 ~ 148 106.27A / 84.31 10,000 133 ~ 148 청솔수 서울특별시 강서구 내발산동 711-6 매매 공급/전용(㎡) 하위평균 일반평균 상위평균 104.03A / 84.20 63,000 67,000 70,000 104.07C / 84.66 63,000 67,000 70,000 104.38D / 84.92 63,000 67,000 70,000 104.47B / 84.65 63,000 67,000 70,000 전세 공급/전용(㎡) 하위평균 일반평균 상위평균 104.03A / 84.20 47,000 49,000 50,000 104.07C / 84.66 47,000 49,000 50,000 104.38D / 84.92 47,000 49,000 50,000 104.47B / 84.65 47,000 49,000 50,000 월세 공급/전용(㎡) 보증금 월세 104.03A / 84.20 10,000 85 ~ 90 104.07C / 84.66 10,000 85 ~ 90 104.38D / 84.92 10,000 85 ~ 90 104.47B / 84.65 10,000 85 ~ 90 청솔숲속마을(102동) 서울특별시 강서구 내발산동 738 매매 공급/전용(㎡) 하위평균 일반평균 상위평균 78.55 / 61.68 61,750 66,500 68,000 106.85C / 84.62 73,500 81,500 84,000 전세 공급/전용(㎡) 하위평균 일반평균 상위평균 78.55 / 61.68 45,750 47,000 48,000 106.85C / 84.62 55,750 57,500 59,250 월세 공급/전용(㎡) 보증금 월세 78.55 / 61.68 8,000 108 ~ 120 106.85C / 84.62 10,000 135 ~ 150 타워힐 서울특별시 강서구 내발산동 661-2 매매 공급/전용(㎡) 하위평균 일반평균 상위평균 115.76 / 84.90 63,000 68,000 73,000 전세 공급/전용(㎡) 하위평균 일반평균 상위평균 115.76 / 84.90 39,000 41,000 43,500 월세 공급/전용(㎡) 보증금 월세 115.76 / 84.90 10,000 80 ~ 90 태승훼미리1차 서울특별시 강서구 내발산동 722-16 매매 공급/전용(㎡) 하위평균 일반평균 상위평균 102.71A / 83.45 65,000 68,000 70,000 102.86C / 83.61 65,000 68,000 70,000 102.86B / 83.58 65,000 68,000 70,000 104.23 / 84.77 65,000 68,000 70,000 108.07 / 87.06 65,000 68,000 70,000 전세 공급/전용(㎡) 하위평균 일반평균 상위평균 102.71A / 83.45 44,000 46,000 51,000 102.86C / 83.61 44,000 46,000 51,000 102.86B / 83.58 44,000 46,000 51,000 104.23 / 84.77 44,000 46,000 51,000 108.07 / 87.06 44,000 46,000 51,000 월세 공급/전용(㎡) 보증금 월세 102.71A / 83.45 10,000 80 ~ 100 102.86C / 83.61 10,000 80 ~ 100 102.86B / 83.58 10,000 80 ~ 100 104.23 / 84.77 10,000 80 ~ 100 108.07 / 87.06 10,000 80 ~ 100 태승훼미리2차 서울특별시 강서구 내발산동 685 매매 공급/전용(㎡) 하위평균 일반평균 상위평균 103.30A / 84.61 72,000 76,500 79,500 103.31B / 84.83 72,000 76,500 79,500 106.03 / 87.71 72,000 76,500 79,500 121.93 / 100.88 75,000 78,000 81,500 122.57A / 101.82 75,000 78,000 81,500 123.94B / 102.69 75,000 78,000 81,500 전세 공급/전용(㎡) 하위평균 일반평균 상위평균 103.30A / 84.61 50,000 52,500 55,000 103.31B / 84.83 50,000 52,500 55,000 106.03 / 87.71 50,000 52,500 55,000 121.93 / 100.88 53,500 57,000 60,000 122.57A / 101.82 53,500 57,000 60,000 123.94B / 102.69 53,500 57,000 60,000 월세 공급/전용(㎡) 보증금 월세 103.30A / 84.61 10,000 98 ~ 108 103.31B / 84.83 10,000 98 ~ 108 106.03 / 87.71 10,000 98 ~ 108 121.93 / 100.88 10,000 125 ~ 135 122.57A / 101.82 10,000 125 ~ 135 123.94B / 102.69 10,000 125 ~ 135 태그 #강서구아파트 #강서구아파트시세 #강서구아파트매매 #강서구아파트전세 #강서구아파트월세 #9호선매매 #9호선전세 #9호선월세 #강서구월세 #강서구전세 #월세 태그수정 공감해요 1 이 글에 공감한 블로거 열고 닫기 댓글 쓰기 이 글에 댓글 단 블로거 열고 닫기 카페 보내기Keep 보내기메모 보내기기타 보내기 펼치기 수정 삭제 설정 강서구아파트,강서구아파트시세,강서구아파트매매,강서구아파트전세,강서구아파트월세,9호선매매,9호선전세,9호선월세,강서구월세,강서구전세,월세 강서구아파트 2021. 12. 28. 15:47 수정 삭제 복사https://blog.naver.com/sungsilhyo/222606763884 통계보기 강서구아파트,강서구아파트시세,강서구아파트매매,강서구아파트전세,강서구아파트월세,9호선매매,9호선전세,9호선월세,강서구월세,강서구전세,월세 강서 I-PARK 서울특별시 강서구 화곡동 980-21 매매 공급/전용(㎡) 하위평균 일반평균 상위평균 97.44A / 82.08 62,000 64,500 67,000 98.62B / 83.07 62,000 64,500 67,000 전세 공급/전용(㎡) 하위평균 일반평균 상위평균 97.44A / 82.08 40,000 44,500 48,000 98.62B / 83.07 40,000 44,500 48,000 월세 공급/전용(㎡) 보증금 월세 97.44A / 82.08 10,000 65 ~ 75 98.62B / 83.07 10,000 65 ~ 75 강서뉴타워 서울특별시 강서구 화곡동 1071-19 매매 공급/전용(㎡) 하위평균 일반평균 상위평균 102.48C / 78.93 57,000 59,000 61,000 103.56D-2 / 79.75 57,000 59,000 61,000 103.92A-3 / 80.01 57,000 59,000 61,000 106.53B / 82.04 58,000 60,000 62,000 106.65A-1 / 82.14 58,000 60,000 62,000 107.61A-2 / 82.88 58,000 60,000 62,000 107.94D / 83.13 58,000 60,000 62,000 109.11E / 84.03 58,000 60,000 62,000 전세 공급/전용(㎡) 하위평균 일반평균 상위평균 102.48C / 78.93 40,000 42,000 43,000 103.56D-2 / 79.75 40,000 42,000 43,000 103.92A-3 / 80.01 40,000 42,000 43,000 106.53B / 82.04 40,000 42,000 43,000 106.65A-1 / 82.14 40,000 42,000 43,000 107.61A-2 / 82.88 40,000 42,000 43,000 107.94D / 83.13 40,000 42,000 43,000 109.11E / 84.03 40,000 42,000 43,000 월세 공급/전용(㎡) 보증금 월세 102.48C / 78.93 - - 103.56D-2 / 79.75 - - 103.92A-3 / 80.01 - - 106.53B / 82.04 - - 106.65A-1 / 82.14 - - 107.61A-2 / 82.88 - - 107.94D / 83.13 - - 109.11E / 84.03 - - 강서동도센트리움(도) 서울특별시 강서구 화곡동 1161 매매 공급/전용(㎡) 하위평균 일반평균 상위평균 23.62 / 14.67 9,750 10,250 10,750 전세 공급/전용(㎡) 하위평균 일반평균 상위평균 23.62 / 14.67 9,500 10,000 10,500 월세 공급/전용(㎡) 보증금 월세 23.62 / 14.67 1,000 40 ~ 45 강서힐스테이트 서울특별시 강서구 화곡동 1165 매매 공급/전용(㎡) 하위평균 일반평균 상위평균 82.13 / 59.99 115,000 119,000 124,000 111.24A / 84.99 135,000 140,000 145,000 111.54E / 84.99 135,000 140,000 145,000 111.85C / 84.99 135,000 140,000 145,000 112.03D / 84.99 135,000 140,000 145,000 112.22B / 84.99 135,000 140,000 145,000 112.34F / 84.99 135,000 140,000 145,000 151.89 / 119.63 149,000 159,500 167,500 160.26E / 128.81 149,500 161,000 169,000 160.67A / 128.81 149,500 161,000 169,000 161.26D / 128.81 149,500 161,000 169,000 161.34B / 128.81 149,500 161,000 169,000 161.86C / 128.81 149,500 161,000 169,000 184.26 / 152.10 157,500 164,000 172,500 전세 공급/전용(㎡) 하위평균 일반평균 상위평균 82.13 / 59.99 62,000 63,500 66,500 111.24A / 84.99 79,000 81,000 85,000 111.54E / 84.99 79,000 81,000 85,000 111.85C / 84.99 79,000 81,000 85,000 112.03D / 84.99 79,000 81,000 85,000 112.22B / 84.99 79,000 81,000 85,000 112.34F / 84.99 79,000 81,000 85,000 151.89 / 119.63 90,000 92,000 95,000 160.26E / 128.81 97,500 102,500 106,500 160.67A / 128.81 97,500 102,500 106,500 161.26D / 128.81 97,500 102,500 106,500 161.34B / 128.81 97,500 102,500 106,500 161.86C / 128.81 97,500 102,500 106,500 184.26 / 152.10 105,000 108,500 112,500 월세 공급/전용(㎡) 보증금 월세 82.13 / 59.99 10,000 120 ~ 130 111.24A / 84.99 10,000 158 ~ 165 111.54E / 84.99 10,000 158 ~ 165 111.85C / 84.99 10,000 158 ~ 165 112.03D / 84.99 10,000 158 ~ 165 112.22B / 84.99 10,000 158 ~ 165 112.34F / 84.99 10,000 158 ~ 165 151.89 / 119.63 10,000 195 ~ 205 160.26E / 128.81 10,000 220 ~ 230 160.67A / 128.81 10,000 220 ~ 230 161.26D / 128.81 10,000 220 ~ 230 161.34B / 128.81 10,000 220 ~ 230 161.86C / 128.81 10,000 220 ~ 230 184.26 / 152.10 10,000 235 ~ 250 거성 서울특별시 강서구 화곡동 50-120 매매 공급/전용(㎡) 하위평균 일반평균 상위평균 52.92 / 34.29 21,850 22,350 22,850 65.10A / 43.56 26,000 27,000 28,000 65.76B / 43.92 26,500 27,500 28,250 73.20 / 49.50 28,250 29,250 30,250 전세 공급/전용(㎡) 하위평균 일반평균 상위평균 52.92 / 34.29 11,000 11,750 13,000 65.10A / 43.56 12,500 13,500 14,500 65.76B / 43.92 12,500 13,500 14,500 73.20 / 49.50 13,500 14,500 15,500 월세 공급/전용(㎡) 보증금 월세 52.92 / 34.29 2,000 45 ~ 48 65.10A / 43.56 2,000 50 ~ 50 65.76B / 43.92 2,000 53 ~ 53 73.20 / 49.50 2,000 58 ~ 60 경동엠파이어스테이트(도) 서울특별시 강서구 화곡동 1111-3 매매 공급/전용(㎡) 하위평균 일반평균 상위평균 21.43 / 14.31 10,000 10,750 11,500 28.32 / 18.91 14,250 14,750 15,500 전세 공급/전용(㎡) 하위평균 일반평균 상위평균 21.43 / 14.31 9,800 10,300 10,900 28.32 / 18.91 13,250 13,750 14,750 월세 공급/전용(㎡) 보증금 월세 21.43 / 14.31 500 45 ~ 45 28.32 / 18.91 500 53 ~ 58 길성그랑프리텔 서울특별시 강서구 화곡동 1157 매매 공급/전용(㎡) 하위평균 일반평균 상위평균 76.77 / 59.84 45,500 48,000 50,500 93.69A / 73.58 51,000 53,500 56,500 93.73B / 73.84 51,000 53,500 56,500 104.95 / 83.03 60,500 63,000 66,500 전세 공급/전용(㎡) 하위평균 일반평균 상위평균 76.77 / 59.84 29,500 31,500 34,000 93.69A / 73.58 36,500 38,500 41,000 93.73B / 73.84 36,500 38,500 41,000 104.95 / 83.03 39,000 41,500 45,000 월세 공급/전용(㎡) 보증금 월세 76.77 / 59.84 10,000 45 ~ 55 93.69A / 73.58 10,000 70 ~ 80 93.73B / 73.84 10,000 70 ~ 80 104.95 / 83.03 10,000 85 ~ 90 남광(917-5) 서울특별시 강서구 화곡동 917-5 매매 공급/전용(㎡) 하위평균 일반평균 상위평균 53.35A / 45.28 29,000 31,000 32,000 53.58B / 45.47 29,000 31,000 32,000 53.65C / 45.53 29,000 31,000 32,000 53.87D / 45.72 29,000 31,000 32,000 전세 공급/전용(㎡) 하위평균 일반평균 상위평균 53.35A / 45.28 23,000 24,000 25,000 53.58B / 45.47 23,000 24,000 25,000 53.65C / 45.53 23,000 24,000 25,000 53.87D / 45.72 23,000 24,000 25,000 월세 공급/전용(㎡) 보증금 월세 53.35A / 45.28 2,000 80 ~ 90 53.58B / 45.47 2,000 80 ~ 90 53.65C / 45.53 2,000 80 ~ 90 53.87D / 45.72 2,000 80 ~ 90 명지해드는터 서울특별시 강서구 화곡동 473-4 매매 공급/전용(㎡) 하위평균 일반평균 상위평균 69.35 / 53.58 29,000 30,000 31,000 76.83 / 59.32 32,000 34,000 35,000 78.41 / 59.76 32,000 34,000 35,000 102.56 / 79.70 48,000 50,000 52,000 106.77 / 83.07 49,000 51,000 53,000 109.32B / 84.84 51,000 53,000 55,000 109.72A / 84.39 50,000 52,000 54,000 전세 공급/전용(㎡) 하위평균 일반평균 상위평균 69.35 / 53.58 22,000 23,000 25,000 76.83 / 59.32 24,000 26,000 28,000 78.41 / 59.76 24,000 26,000 28,000 102.56 / 79.70 32,000 34,000 36,000 106.77 / 83.07 32,000 35,000 37,000 109.32B / 84.84 37,000 38,000 40,000 109.72A / 84.39 36,000 38,000 40,000 월세 공급/전용(㎡) 보증금 월세 69.35 / 53.58 5,000 50 ~ 50 76.83 / 59.32 5,000 70 ~ 70 78.41 / 59.76 5,000 70 ~ 70 102.56 / 79.70 5,000 100 ~ 100 106.77 / 83.07 5,000 100 ~ 100 109.32B / 84.84 5,000 100 ~ 100 109.72A / 84.39 5,000 100 ~ 100 미성 서울특별시 강서구 화곡동 409-248 매매 공급/전용(㎡) 하위평균 일반평균 상위평균 96.24 / 66.42 30,000 31,000 32,000 108.34 / 81.89 49,500 52,500 56,500 137.67 / 118.70 60,000 62,000 63,500 140.78B / 119.77 62,000 64,000 66,000 141.74A / 120.30 62,000 64,000 66,000 146.25 / 126.04 63,000 65,500 67,500 전세 공급/전용(㎡) 하위평균 일반평균 상위평균 96.24 / 66.42 18,000 19,000 20,000 108.34 / 81.89 31,000 33,000 35,500 137.67 / 118.70 32,500 34,500 37,000 140.78B / 119.77 34,000 36,000 38,000 141.74A / 120.30 34,000 36,000 38,000 146.25 / 126.04 35,500 37,500 40,500 월세 공급/전용(㎡) 보증금 월세 96.24 / 66.42 5,000 70 ~ 75 108.34 / 81.89 7,000 70 ~ 75 137.67 / 118.70 9,000 90 ~ 100 140.78B / 119.77 9,000 93 ~ 103 141.74A / 120.30 9,000 93 ~ 103 146.25 / 126.04 10,000 90 ~ 100 보람(화곡5차보람쉬움) 서울특별시 강서구 화곡동 1152 매매 공급/전용(㎡) 하위평균 일반평균 상위평균 85.38 / 68.17 35,500 36,500 38,500 105.75A / 84.97 48,500 51,500 55,500 106.02B / 84.98 49,500 52,500 56,500 전세 공급/전용(㎡) 하위평균 일반평균 상위평균 85.38 / 68.17 25,500 27,500 29,500 105.75A / 84.97 35,000 36,000 40,000 106.02B / 84.98 35,000 36,000 40,000 월세 공급/전용(㎡) 보증금 월세 85.38 / 68.17 5,000 65 ~ 70 105.75A / 84.97 5,000 75 ~ 85 106.02B / 84.98 5,000 75 ~ 85 비원빌라 서울특별시 강서구 화곡동 1130-7 매매 공급/전용(㎡) 하위평균 일반평균 상위평균 62.52 / 41.49 18,750 19,750 21,000 65.76 / 43.92 19,500 20,750 21,750 81.96 / 56.07 27,500 28,500 30,500 전세 공급/전용(㎡) 하위평균 일반평균 상위평균 62.52 / 41.49 13,000 14,000 15,000 65.76 / 43.92 13,000 14,000 15,000 81.96 / 56.07 15,500 16,250 17,000 월세 공급/전용(㎡) 보증금 월세 62.52 / 41.49 2,000 50 ~ 58 65.76 / 43.92 2,000 55 ~ 60 81.96 / 56.07 5,000 45 ~ 53 삼도 서울특별시 강서구 화곡동 913-1 매매 공급/전용(㎡) 하위평균 일반평균 상위평균 102.60 / 70.84 28,000 30,000 32,000 전세 공급/전용(㎡) 하위평균 일반평균 상위평균 102.60 / 70.84 22,000 23,000 25,000 월세 공급/전용(㎡) 보증금 월세 102.60 / 70.84 5,000 80 ~ 100 삼성다빈치(도) 서울특별시 강서구 화곡동 917-14 매매 공급/전용(㎡) 하위평균 일반평균 상위평균 21.51A / 14.35 11,000 11,500 12,000 전세 공급/전용(㎡) 하위평균 일반평균 상위평균 21.51A / 14.35 9,000 9,500 10,000 월세 공급/전용(㎡) 보증금 월세 21.51A / 14.35 500 50 ~ 60 서광프리메라 서울특별시 강서구 화곡동 981-1 매매 공급/전용(㎡) 하위평균 일반평균 상위평균 101.19C / 83.70 58,500 61,750 64,500 101.86B / 84.30 58,500 61,750 64,500 102.00E / 84.37 58,500 61,750 64,500 102.69D / 84.94 58,500 61,750 64,500 102.71A / 84.96 58,500 61,750 64,500 전세 공급/전용(㎡) 하위평균 일반평균 상위평균 101.19C / 83.70 39,500 41,500 44,500 101.86B / 84.30 39,500 41,500 44,500 102.00E / 84.37 39,500 41,500 44,500 102.69D / 84.94 39,500 41,500 44,500 102.71A / 84.96 39,500 41,500 44,500 월세 공급/전용(㎡) 보증금 월세 101.19C / 83.70 5,000 90 ~ 100 101.86B / 84.30 5,000 90 ~ 100 102.00E / 84.37 5,000 90 ~ 100 102.69D / 84.94 5,000 90 ~ 100 102.71A / 84.96 5,000 90 ~ 100 우장산 SK VIEW 서울특별시 강서구 화곡동 1158 매매 공급/전용(㎡) 하위평균 일반평균 상위평균 104.82A / 84.97 89,000 92,000 94,000 105.81B / 84.98 88,500 91,500 93,500 138.06 / 116.92 91,500 94,500 97,500 전세 공급/전용(㎡) 하위평균 일반평균 상위평균 104.82A / 84.97 54,000 62,000 65,500 105.81B / 84.98 54,000 62,000 65,500 138.06 / 116.92 62,500 70,500 73,500 월세 공급/전용(㎡) 보증금 월세 104.82A / 84.97 5,000 93 ~ 100 105.81B / 84.98 5,000 93 ~ 100 138.06 / 116.92 5,000 105 ~ 120 우장산롯데(3차) 서울특별시 강서구 화곡동 1148 매매 공급/전용(㎡) 하위평균 일반평균 상위평균 74.48 / 59.97 54,250 57,000 60,500 104.70A / 84.98 78,500 82,000 84,000 104.70B / 84.98 78,500 82,000 84,000 136.31 / 117.24 86,000 88,500 91,000 전세 공급/전용(㎡) 하위평균 일반평균 상위평균 74.48 / 59.97 35,000 36,000 37,500 104.70A / 84.98 43,000 45,500 48,000 104.70B / 84.98 43,000 45,500 48,000 136.31 / 117.24 48,000 51,000 54,000 월세 공급/전용(㎡) 보증금 월세 74.48 / 59.97 10,000 65 ~ 70 104.70A / 84.98 10,000 90 ~ 100 104.70B / 84.98 10,000 90 ~ 100 136.31 / 117.24 10,000 145 ~ 150 우장산롯데캐슬 서울특별시 강서구 화곡동 1145 매매 공급/전용(㎡) 하위평균 일반평균 상위평균 109.27 / 85.00 117,500 124,000 129,000 147.59 / 117.19 125,000 130,000 135,000 170.40 / 134.99 129,000 136,500 144,000 215.80 / 177.86 136,500 146,000 155,000 전세 공급/전용(㎡) 하위평균 일반평균 상위평균 109.27 / 85.00 65,000 67,500 72,500 147.59 / 117.19 74,000 77,500 81,500 170.40 / 134.99 82,500 87,500 92,500 215.80 / 177.86 92,500 97,000 102,500 월세 공급/전용(㎡) 보증금 월세 109.27 / 85.00 10,000 150 ~ 165 147.59 / 117.19 10,000 200 ~ 210 170.40 / 134.99 10,000 230 ~ 230 215.80 / 177.86 10,000 250 ~ 250 우장산아이파크이편한세상 서울특별시 강서구 화곡동 1159 매매 공급/전용(㎡) 하위평균 일반평균 상위평균 79.93D / 59.98 108,000 113,000 119,500 79.93D1 / 59.98 108,000 113,000 119,500 107.49C / 84.97 127,500 134,000 140,500 107.49C1 / 84.97 127,500 134,000 140,500 107.49C2 / 84.97 127,500 134,000 140,500 107.49C3 / 84.97 127,500 134,000 140,500 107.49C4 / 84.97 127,500 134,000 140,500 125.24B / 101.65 135,000 141,500 146,500 136.39A-N / 114.98 140,500 146,500 153,000 136.39A-S / 114.98 140,500 146,500 153,000 전세 공급/전용(㎡) 하위평균 일반평균 상위평균 79.93D / 59.98 55,500 61,500 66,000 79.93D1 / 59.98 55,500 61,500 66,000 107.49C / 84.97 72,500 79,000 85,500 107.49C1 / 84.97 72,500 79,000 85,500 107.49C2 / 84.97 72,500 79,000 85,500 107.49C3 / 84.97 72,500 79,000 85,500 107.49C4 / 84.97 72,500 79,000 85,500 125.24B / 101.65 73,500 82,500 87,500 136.39A-N / 114.98 80,000 86,500 91,500 136.39A-S / 114.98 80,000 86,500 91,500 월세 공급/전용(㎡) 보증금 월세 79.93D / 59.98 10,000 120 ~ 130 79.93D1 / 59.98 10,000 120 ~ 130 107.49C / 84.97 10,000 150 ~ 160 107.49C1 / 84.97 10,000 150 ~ 160 107.49C2 / 84.97 10,000 150 ~ 160 107.49C3 / 84.97 10,000 150 ~ 160 107.49C4 / 84.97 10,000 150 ~ 160 125.24B / 101.65 10,000 170 ~ 180 136.39A-N / 114.98 10,000 190 ~ 200 136.39A-S / 114.98 10,000 190 ~ 200 우장산한화꿈에그린 서울특별시 강서구 화곡동 1151 매매 공급/전용(㎡) 하위평균 일반평균 상위평균 105.60 / 84.98 77,500 81,500 84,500 126.40 / 102.11 80,000 84,500 88,500 148.66 / 120.11 94,500 98,500 102,500 전세 공급/전용(㎡) 하위평균 일반평균 상위평균 105.60 / 84.98 50,000 53,500 57,500 126.40 / 102.11 53,000 55,000 59,000 148.66 / 120.11 62,500 64,500 68,500 월세 공급/전용(㎡) 보증금 월세 105.60 / 84.98 10,000 95 ~ 100 126.40 / 102.11 - - 148.66 / 120.11 - - 우장산휴먼빌 서울특별시 강서구 화곡동 1156 매매 공급/전용(㎡) 하위평균 일반평균 상위평균 105.22D / 83.81 55,500 57,500 58,500 105.71F / 84.94 55,500 57,500 58,500 105.79E / 84.76 55,500 57,500 58,500 전세 공급/전용(㎡) 하위평균 일반평균 상위평균 105.22D / 83.81 37,000 42,500 45,500 105.71F / 84.94 37,000 42,500 45,500 105.79E / 84.76 37,000 42,500 45,500 월세 공급/전용(㎡) 보증금 월세 105.22D / 83.81 5,000 98 ~ 100 105.71F / 84.94 5,000 98 ~ 100 105.79E / 84.76 5,000 98 ~ 100 웰라이빌 서울특별시 강서구 화곡동 927-1 매매 공급/전용(㎡) 하위평균 일반평균 상위평균 100.35 / 79.87 39,500 41,500 44,500 106.47C / 84.73 43,750 46,750 49,500 106.61A / 84.85 43,750 46,750 49,500 106.78B / 84.98 43,750 46,750 49,500 139.74 / 111.21 48,000 50,000 53,000 전세 공급/전용(㎡) 하위평균 일반평균 상위평균 100.35 / 79.87 29,500 30,500 31,500 106.47C / 84.73 31,750 32,750 33,750 106.61A / 84.85 31,750 32,750 33,750 106.78B / 84.98 31,750 32,750 33,750 139.74 / 111.21 34,000 35,000 36,000 월세 공급/전용(㎡) 보증금 월세 100.35 / 79.87 5,000 75 ~ 80 106.47C / 84.73 5,000 80 ~ 85 106.61A / 84.85 5,000 80 ~ 85 106.78B / 84.98 5,000 80 ~ 85 139.74 / 111.21 - - 유림노르웨이숲 서울특별시 강서구 화곡동 919-1 매매 공급/전용(㎡) 하위평균 일반평균 상위평균 82.85 / 64.05 46,000 49,500 53,000 98.61 / 76.23 59,000 62,500 66,000 전세 공급/전용(㎡) 하위평균 일반평균 상위평균 82.85 / 64.05 34,000 36,000 37,000 98.61 / 76.23 39,000 42,000 44,000 월세 공급/전용(㎡) 보증금 월세 82.85 / 64.05 5,000 65 ~ 75 98.61 / 76.23 5,000 80 ~ 95 일성스카이빌 서울특별시 강서구 화곡동 914-3 매매 공급/전용(㎡) 하위평균 일반평균 상위평균 75.11 / 59.96 31,000 33,000 35,000 90.93 / 72.60 40,000 42,000 44,000 95.61 / 76.32 44,000 47,000 49,000 99.66 / 79.56 44,000 47,000 49,000 143.09B / 114.23 50,000 52,000 54,000 145.71A / 116.32 50,000 52,000 54,000 전세 공급/전용(㎡) 하위평균 일반평균 상위평균 75.11 / 59.96 23,000 25,000 27,000 90.93 / 72.60 29,000 30,000 31,000 95.61 / 76.32 31,000 33,000 35,000 99.66 / 79.56 31,000 33,000 35,000 143.09B / 114.23 38,000 40,000 42,000 145.71A / 116.32 38,000 40,000 42,000 월세 공급/전용(㎡) 보증금 월세 75.11 / 59.96 3,000 80 ~ 90 90.93 / 72.60 3,000 100 ~ 120 95.61 / 76.32 4,000 100 ~ 120 99.66 / 79.56 4,000 100 ~ 120 143.09B / 114.23 7,000 100 ~ 120 145.71A / 116.32 7,000 120 ~ 140 중앙화곡하이츠 서울특별시 강서구 화곡동 351-89 매매 공급/전용(㎡) 하위평균 일반평균 상위평균 63.58 / 48.78 31,000 33,500 35,000 64.74 / 49.68 32,000 34,000 35,500 74.12 / 56.88 50,500 53,500 56,500 86.33 / 66.24 52,500 55,000 58,000 96.63 / 74.16 54,500 56,500 59,500 전세 공급/전용(㎡) 하위평균 일반평균 상위평균 63.58 / 48.78 18,500 19,500 21,500 64.74 / 49.68 18,500 19,500 21,500 74.12 / 56.88 28,000 29,000 31,000 86.33 / 66.24 29,500 31,500 32,500 96.63 / 74.16 31,000 33,000 35,000 월세 공급/전용(㎡) 보증금 월세 63.58 / 48.78 2,000 55 ~ 60 64.74 / 49.68 2,000 55 ~ 60 74.12 / 56.88 2,000 70 ~ 73 86.33 / 66.24 3,000 70 ~ 73 96.63 / 74.16 3,000 80 ~ 83 초록 서울특별시 강서구 화곡동 1139 매매 공급/전용(㎡) 하위평균 일반평균 상위평균 68.86B / 49.14 54,500 60,000 64,000 69.75A / 49.77 54,500 60,000 64,000 82.19B / 58.65 64,000 69,000 71,000 83.16A / 59.34 64,000 69,000 71,000 83.40C / 59.51 64,000 69,000 71,000 106.57B / 83.83 75,000 80,500 82,750 106.87A / 84.07 75,000 80,500 82,750 106.98E / 84.15 75,000 80,500 82,750 107.14D / 84.28 75,000 80,500 82,750 107.21C / 84.33 75,000 80,500 82,750 전세 공급/전용(㎡) 하위평균 일반평균 상위평균 68.86B / 49.14 29,000 32,500 35,000 69.75A / 49.77 29,000 32,500 35,000 82.19B / 58.65 40,000 42,000 45,000 83.16A / 59.34 40,000 42,000 45,000 83.40C / 59.51 40,000 42,000 45,000 106.57B / 83.83 55,000 58,500 65,000 106.87A / 84.07 55,000 58,500 65,000 106.98E / 84.15 55,000 58,500 65,000 107.14D / 84.28 55,000 58,500 65,000 107.21C / 84.33 55,000 58,500 65,000 월세 공급/전용(㎡) 보증금 월세 68.86B / 49.14 5,000 70 ~ 80 69.75A / 49.77 5,000 70 ~ 80 82.19B / 58.65 5,000 90 ~ 100 83.16A / 59.34 5,000 90 ~ 100 83.40C / 59.51 5,000 90 ~ 100 106.57B / 83.83 5,000 125 ~ 140 106.87A / 84.07 5,000 125 ~ 140 106.98E / 84.15 5,000 125 ~ 140 107.14D / 84.28 5,000 125 ~ 140 107.21C / 84.33 5,000 125 ~ 140 탑건진선미 서울특별시 강서구 화곡동 1155 매매 공급/전용(㎡) 하위평균 일반평균 상위평균 86.67 / 69.33 55,000 57,000 59,000 105.90B / 84.85 60,000 62,000 64,000 105.92A / 84.97 61,000 63,000 64,500 106.24C / 84.81 60,000 62,000 64,000 106.25D / 84.92 59,500 61,500 63,000 전세 공급/전용(㎡) 하위평균 일반평균 상위평균 86.67 / 69.33 40,500 42,000 44,000 105.90B / 84.85 42,000 44,500 46,500 105.92A / 84.97 43,000 45,000 47,000 106.24C / 84.81 42,000 44,500 46,500 106.25D / 84.92 42,000 44,500 46,500 월세 공급/전용(㎡) 보증금 월세 86.67 / 69.33 5,000 90 ~ 100 105.90B / 84.85 8,000 95 ~ 110 105.92A / 84.97 8,000 95 ~ 110 106.24C / 84.81 8,000 95 ~ 110 106.25D / 84.92 8,000 90 ~ 105 태영방송인 서울특별시 강서구 화곡동 1140 매매 공급/전용(㎡) 하위평균 일반평균 상위평균 79.41 / 59.94 42,000 45,000 48,000 112.51 / 84.93 50,000 56,000 58,000 150.67B / 113.73 53,000 57,000 59,000 152.10A / 114.81 56,000 60,000 62,000 152.11C / 114.78 56,000 60,000 62,000 전세 공급/전용(㎡) 하위평균 일반평균 상위평균 79.41 / 59.94 30,000 32,000 35,000 112.51 / 84.93 39,000 42,000 45,000 150.67B / 113.73 39,000 42,000 45,000 152.10A / 114.81 42,000 45,000 48,000 152.11C / 114.78 42,000 45,000 48,000 월세 공급/전용(㎡) 보증금 월세 79.41 / 59.94 5,000 60 ~ 60 112.51 / 84.93 5,000 90 ~ 95 150.67B / 113.73 - - 152.10A / 114.81 - - 152.11C / 114.78 - - 태창네스트힐 서울특별시 강서구 화곡동 1146 매매 공급/전용(㎡) 하위평균 일반평균 상위평균 72.97 / 55.88 33,000 35,000 37,500 95.79 / 71.98 43,500 44,500 46,000 107.24 / 82.35 51,500 54,500 56,500 전세 공급/전용(㎡) 하위평균 일반평균 상위평균 72.97 / 55.88 22,500 24,000 25,500 95.79 / 71.98 28,000 29,000 30,000 107.24 / 82.35 33,500 35,000 36,500 월세 공급/전용(㎡) 보증금 월세 72.97 / 55.88 5,000 60 ~ 70 95.79 / 71.98 6,000 70 ~ 80 107.24 / 82.35 7,000 75 ~ 80 한양아이클래스(도) 서울특별시 강서구 화곡동 926-5 매매 공급/전용(㎡) 하위평균 일반평균 상위평균 19.86A / 13.75 8,500 8,800 9,000 19.92B / 13.79 8,500 8,800 9,000 전세 공급/전용(㎡) 하위평균 일반평균 상위평균 19.86A / 13.75 8,000 8,300 8,500 19.92B / 13.79 8,000 8,300 8,500 월세 공급/전용(㎡) 보증금 월세 19.86A / 13.75 500 40 ~ 45 19.92B / 13.79 500 40 ~ 45 해태드림타운 서울특별시 강서구 화곡동 900-1 매매 공급/전용(㎡) 하위평균 일반평균 상위평균 85.70 / 66.15 34,250 35,250 36,750 103.82 / 80.13 41,500 43,000 44,000 107.74 / 83.16 44,750 46,250 48,750 전세 공급/전용(㎡) 하위평균 일반평균 상위평균 85.70 / 66.15 29,000 29,750 31,000 103.82 / 80.13 33,500 35,000 37,000 107.74 / 83.16 34,500 35,500 37,500 월세 공급/전용(㎡) 보증금 월세 85.70 / 66.15 3,000 73 ~ 80 103.82 / 80.13 5,000 80 ~ 85 107.74 / 83.16 5,000 90 ~ 95 화곡1차보람쉬움(보람) 서울특별시 강서구 화곡동 1087 매매 공급/전용(㎡) 하위평균 일반평균 상위평균 76.62A / 55.48 32,000 34,000 35,000 76.62B / 55.48 32,000 34,000 35,000 100.11C / 79.49 45,000 48,000 50,000 100.33B / 79.38 45,000 48,000 50,000 101.46A / 80.26 45,000 48,000 50,000 102.03B / 80.76 45,000 48,000 50,000 전세 공급/전용(㎡) 하위평균 일반평균 상위평균 76.62A / 55.48 21,000 22,000 23,000 76.62B / 55.48 21,000 22,000 23,000 100.11C / 79.49 28,000 30,000 32,000 100.33B / 79.38 28,000 30,000 32,000 101.46A / 80.26 28,000 30,000 32,000 102.03B / 80.76 28,000 30,000 32,000 월세 공급/전용(㎡) 보증금 월세 76.62A / 55.48 10,000 45 ~ 50 76.62B / 55.48 10,000 45 ~ 50 100.11C / 79.49 10,000 50 ~ 55 100.33B / 79.38 10,000 50 ~ 55 101.46A / 80.26 10,000 50 ~ 55 102.03B / 80.76 10,000 50 ~ 55 화곡3차보람 서울특별시 강서구 화곡동 1150 매매 공급/전용(㎡) 하위평균 일반평균 상위평균 104.15 / 81.63 51,000 52,000 54,000 105.78A / 82.18 51,000 52,000 54,000 106.92B / 83.87 53,000 54,000 56,000 107.92C / 84.79 53,000 54,000 56,000 전세 공급/전용(㎡) 하위평균 일반평균 상위평균 104.15 / 81.63 38,000 40,000 43,000 105.78A / 82.18 38,000 40,000 43,000 106.92B / 83.87 39,000 41,000 44,000 107.92C / 84.79 39,000 41,000 44,000 월세 공급/전용(㎡) 보증금 월세 104.15 / 81.63 5,000 100 ~ 100 105.78A / 82.18 5,000 100 ~ 100 106.92B / 83.87 5,000 110 ~ 110 107.92C / 84.79 5,000 110 ~ 110 화곡대림 서울특별시 강서구 화곡동 361-1 매매 공급/전용(㎡) 하위평균 일반평균 상위평균 101.31 / 84.84 67,000 70,500 73,500 129.69 / 110.26 73,500 77,500 81,000 전세 공급/전용(㎡) 하위평균 일반평균 상위평균 101.31 / 84.84 40,500 42,000 44,000 129.69 / 110.26 45,500 49,000 52,500 월세 공급/전용(㎡) 보증금 월세 101.31 / 84.84 - - 129.69 / 110.26 - - 화곡동복지 서울특별시 강서구 화곡동 354-54 매매 공급/전용(㎡) 하위평균 일반평균 상위평균 53.94A / 53.94 19,500 21,000 22,500 53.94B / 53.94 19,500 21,000 22,500 53.95C / 53.95 19,500 21,000 22,500 전세 공급/전용(㎡) 하위평균 일반평균 상위평균 53.94A / 53.94 12,000 13,000 14,000 53.94B / 53.94 12,000 13,000 14,000 53.95C / 53.95 12,000 13,000 14,000 월세 공급/전용(㎡) 보증금 월세 53.94A / 53.94 2,000 40 ~ 50 53.94B / 53.94 2,000 40 ~ 50 53.95C / 53.95 2,000 40 ~ 50 화곡동예다움 서울특별시 강서구 화곡동 461-4 매매 공급/전용(㎡) 하위평균 일반평균 상위평균 72.22 / 57.71 33,000 36,000 38,000 75.34 / 59.92 33,000 36,000 38,000 80.62 / 64.21 36,000 38,000 40,000 91.82 / 74.31 37,000 39,000 41,000 95.33 / 76.44 37,000 39,000 41,000 104.47A / 84.03 45,000 48,000 52,000 104.98B / 84.76 46,000 49,000 53,000 전세 공급/전용(㎡) 하위평균 일반평균 상위평균 72.22 / 57.71 26,000 27,000 28,000 75.34 / 59.92 26,000 27,000 28,000 80.62 / 64.21 28,000 30,000 32,000 91.82 / 74.31 28,000 30,000 32,000 95.33 / 76.44 28,000 30,000 32,000 104.47A / 84.03 33,000 35,000 38,000 104.98B / 84.76 33,000 35,000 38,000 월세 공급/전용(㎡) 보증금 월세 72.22 / 57.71 5,000 60 ~ 65 75.34 / 59.92 5,000 60 ~ 65 80.62 / 64.21 5,000 65 ~ 70 91.82 / 74.31 5,000 70 ~ 75 95.33 / 76.44 5,000 70 ~ 75 104.47A / 84.03 5,000 80 ~ 85 104.98B / 84.76 5,000 80 ~ 85 화곡보람(보람쉬움) 서울특별시 강서구 화곡동 1149 매매 공급/전용(㎡) 하위평균 일반평균 상위평균 76.02 / 59.24 51,500 54,500 57,500 107.06A / 84.51 68,000 72,000 75,000 107.59B / 84.94 68,000 72,000 75,000 140.84 / 112.05 73,500 75,500 79,000 전세 공급/전용(㎡) 하위평균 일반평균 상위평균 76.02 / 59.24 30,000 32,000 35,000 107.06A / 84.51 40,000 45,000 50,000 107.59B / 84.94 40,000 45,000 50,000 140.84 / 112.05 49,000 52,000 55,000 월세 공급/전용(㎡) 보증금 월세 76.02 / 59.24 10,000 65 ~ 80 107.06A / 84.51 10,000 88 ~ 95 107.59B / 84.94 10,000 88 ~ 95 140.84 / 112.05 10,000 130 ~ 145 화곡푸르지오 서울특별시 강서구 화곡동 1091 매매 공급/전용(㎡) 하위평균 일반평균 상위평균 114.99B / 84.91 98,500 104,500 110,000 117.28A / 84.94 97,500 102,500 108,500 125.94 / 94.83 101,000 108,000 114,500 136.44A / 103.92 108,500 118,000 124,500 137.16B / 104.75 108,500 118,000 124,500 164.54A / 125.02 117,500 123,500 128,000 165.08B / 129.20 117,500 123,500 128,000 165.10C / 130.27 117,500 123,500 128,000 186.61 / 144.12 128,500 137,500 139,000 204.78 / 156.87 136,000 139,000 146,000 235.91 / 192.22 140,000 145,500 151,000 전세 공급/전용(㎡) 하위평균 일반평균 상위평균 114.99B / 84.91 55,000 58,500 61,000 117.28A / 84.94 55,000 57,000 60,000 125.94 / 94.83 57,000 60,000 62,000 136.44A / 103.92 60,000 65,500 68,500 137.16B / 104.75 60,000 65,500 68,500 164.54A / 125.02 64,000 68,500 71,000 165.08B / 129.20 64,000 68,500 71,000 165.10C / 130.27 64,000 68,500 71,000 186.61 / 144.12 73,000 78,000 81,000 204.78 / 156.87 76,000 80,500 86,000 235.91 / 192.22 89,000 94,000 97,000 월세 공급/전용(㎡) 보증금 월세 114.99B / 84.91 10,000 100 ~ 130 117.28A / 84.94 10,000 100 ~ 130 125.94 / 94.83 10,000 110 ~ 140 136.44A / 103.92 10,000 125 ~ 150 137.16B / 104.75 10,000 125 ~ 150 164.54A / 125.02 10,000 140 ~ 155 165.08B / 129.20 10,000 140 ~ 155 165.10C / 130.27 10,000 140 ~ 155 186.61 / 144.12 10,000 155 ~ 170 204.78 / 156.87 10,000 158 ~ 180 235.91 / 192.22 - - 희훈리치파크 서울특별시 강서구 화곡동 1011-6 매매 공급/전용(㎡) 하위평균 일반평균 상위평균 110.20A / 84.24 72,750 76,750 79,750 110.37C / 84.63 72,750 76,750 79,750 110.42D / 84.62 72,750 76,750 79,750 110.49B / 84.64 72,750 76,750 79,750 139.74 / 105.20 75,000 79,000 82,000 145.30 / 109.36 76,000 80,000 83,000 152.91A / 115.50 77,000 81,000 84,000 152.93B / 115.48 77,000 81,000 84,000 전세 공급/전용(㎡) 하위평균 일반평균 상위평균 110.20A / 84.24 45,000 47,000 50,000 110.37C / 84.63 45,000 47,000 50,000 110.42D / 84.62 45,000 47,000 50,000 110.49B / 84.64 45,000 47,000 50,000 139.74 / 105.20 47,000 49,000 52,000 145.30 / 109.36 48,000 50,000 53,000 152.91A / 115.50 50,000 52,000 55,000 152.93B / 115.48 50,000 52,000 55,000 월세 공급/전용(㎡) 보증금 월세 110.20A / 84.24 10,000 100 ~ 110 110.37C / 84.63 10,000 100 ~ 110 110.42D / 84.62 10,000 100 ~ 110 110.49B / 84.64 10,000 100 ~ 110 139.74 / 105.20 10,000 120 ~ 130 145.30 / 109.36 10,000 120 ~ 130 152.91A / 115.50 10,000 120 ~ 130 152.93B / 115.48 10,000 120 ~ 130 태그 #강서구아파트 #강서구아파트시세 #강서구아파트매매 #강서구아파트전세 #강서구아파트월세 #9호선매매 #9호선전세 #9호선월세 #강서구월세 #강서구전세 #월세 태그수정 공감해요 2 이 글에 공감한 블로거 열고 닫기 댓글 쓰기 이 글에 댓글 단 블로거 열고 닫기 카페 보내기Keep 보내기메모 보내기기타 보내기 펼치기 수정 삭제 설정